Из «однушек» — в «двушки»: 7 вариантов перепланировки
Работать с ограниченным пространством дизайнерам интерьеров тяжелее всего. Чем меньше помещение, тем важнее соблюдать правила эргономики, чтобы жильцы не натыкались на мебель и чувствовали себя комфортно. Кажется, что в «однушке» поместится только кухня-гостиная и спальня — для большего функционала просто нет места.
Дизайнер Никита Зуб, который специализируется на перепланировке маленьких квартир, развеивает это заблуждение.
Уместить кухню и спальню в ниши
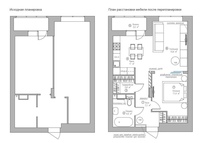
Владельцы однокомнатной квартиры площадью 35 кв. м поставили перед дизайнером непростую задачу: нужно было непременно обустроить изолированную спальню, а гостиная должна остаться максимально просторной. К тому же было важно предусмотреть вместительную систему хранения, поэтому целую стену полностью отвели под узкие встроенные шкафы.
Бывшую кухню разделили на два помещения стеклянной перегородкой — образовалось две ниши, в каждой из которых достаточно света.
В зависимости от размеров получится обустроить почти полноценную спальню с парой прикроватных тумбочек или кухню с барной стойкой.
Заменить балконную дверь на две
Однокомнатная квартира в старом фонде довольно просторная — 53 кв. м. Но в стенах — множество ниш и выступов, холл занимает почти треть площади, а на кухне установлена газовая плита, которую нельзя перенести. Заказчики планировали пополнение в семье, поэтому хотели не только отдельную спальню, но и детскую. Казалось бы, в квартире с двумя окнами и газовой плитой на кухне это невыполнимая задача.
В итоге в холле обустроили гардеробную, которая тоже была в списке обязательных требований пары. Кухню с газовой плитой и котлом оставили практически нетронутой. А жилую комнату разделили на две части: спальню и детскую.
Проблему с окном была решена довольно креативно — балконный блок заменили на два одинаковых. Получились две комнаты, в каждой из которой есть выход на один балкон.
Двери стеклянные, поэтому проблем с освещенностью в комнатах не будет.
Избавиться от коридоров
Еще одна однокомнатная квартира — на этот раз 58 кв. м, изначально в ней было даже два санузла! Но полезную площадь съедали коридоры. Один из них переделали под гардеробную, о которой мечтала молодая девушка — хозяйка квартиры.
Чтобы выделить спальню и гостиную, не несущую часть стены в коридоре демонтировали. В той части коридора, которую пришлось сохранить, обустроили проходной мини-кабинет за стеклянной перегородкой. Еще одна стеклянная перегородка отделяет гостиную от кухни, которой перепланировка почти не коснулась. А дополнительный естественный свет в гостиную поступает еще и сквозь балконную дверь.
Перенести кухню в коридор
Планировка и площадь «еврооднушки» изначально были неплохими: 59 «квадратов» портил лишь длинный темный коридор. Вот только семейной паре с двумя сыновьями было необходимо переделать пространство в полноценную трехкомнатную квартиру.
Поэтому пришлось уменьшить площадь прихожей, перенести кухню в коридор, а на ее месте сделать детскую с двухъярусной кроватью.
Спальни и санузла переделка почти не коснулась — в них только перенесли дверные проемы. А вот центральную часть квартиры объединили с коридором. Перенос кухни из одной нежилой зоны в другую — вполне законная перепланировка.
Но она влечет ряд сложностей. Коммуникации удастся подвести из расположенного через стенку санузла, а вот вентиляцию придется тянуть к существующему каналу, который теперь окажется в детской. Эту конструкцию спрятали за подшивным потолком — высота 2,9 м позволяла немного его занизить.
Использовать стеклянные перегородки
Площадь «однушки» — всего 37,5 кв. м. А уместить хотелось спальню, детскую, кухню и гостиную с дополнительным спальным местом для родственников, которые периодически приезжают погостить. Выручило то, что плита на кухне электрическая, а в прихожей была ниша. На эту нежилую площадь и была перемещена зона готовки, причем вполне законно.
Кухня в нише получилась хоть и небольшой (всего 5,5 «квадратов»), но функциональной. Это пространство плавно перетекает в гостиную, поэтому у жильцов не создается ощущения давящей тесноты. У окон расположились спальня и детская. Они отделены стеклянными перегородками, чтобы естественный свет попадал в гостиную и на кухню.
Установить на кухне насос
В «однушке» площадью 38 кв. м тоже требуется изолированная спальня. И ее тоже легко обустроить на месте кухни. Правда, переносить зону готовки допустимо только на нежилую площадь, то есть в нишу при входе. И главная проблема заключается в том, что застройщик не предусмотрел коммуникаций в правой половине квартиры. Поэтому мало кто рассматривал такую схему перепланировки. И напрасно.
Перенос кухни в нишу позволит обустроить и довольно просторную спальню с окном, и гостиную с большим обеденным столом и витринами для сервировочной посуды. А пятиметровая кухня с П-образным гарнитуром вместит всю необходимую бытовую технику.
Но для реализации плана придется пустить коммуникации под потолком и установить насос. Это увеличит стоимость ремонта, но согласовать такую перепланировку вполне реально.
Задействовать лоджию
Прямоугольная квартира-пенал с двумя окнами в торце — не самый удачный вариант. Но владельцам этой 41-метровой «однушки» повезло — они собирались утеплить 13-метровую лоджию и установить электрические обогреватели, чтобы полноценно ее использовать.
Правда, и задачи по функционалу были огромны. Помимо кухни и гостиной в квартире должны были появиться отдельная спальня и детская, а также два рабочих места — детское и взрослое. То есть однокомнатная квартира должна была выполнять функции четырехкомнатной.
Поскольку лоджию планируется полноценно использовать, сразу предусмотрим там две комнаты — например детскую и кабинет. Конечно, места в этих помещениях очень мало — уместятся буквально кровать и письменный стол, зато они будут изолированными.
Кухня останется в прежних границах, а спальню родителей отделим от гостиной стеклянной перегородкой.
Впрочем, гостиной не придется жертвовать, если оставить ее в прежних границах и расположить в ней рабочее место и обеденный стол. При этом часть кухни придется отдать под детскую, а зону готовки уместить в узкую нишу. Но одной хозяйке готовить на такой площади будет вполне удобно. Лоджию тоже разделим на две части, но в этот раз это будут спальня родителей и детский мини-кабинет.
Чтобы никто не спал на лоджии, можно обустроить там два кабинета — детский и взрослый. Спальню и детскую расположить у окон и отделить стеклянными перегородками. Правда, кухня и гостиная сильно уменьшатся в размерах.
Наконец, самая интересная, но и самая сложная в реализации перепланировка — перенос кухни в коридор и присоединение к гостиной. При согласовании зона готовки будет называться встроенным шкафом, а спальня родителей всё так же будет считаться кухней. Зато все помещения окажутся максимально просторными.
Конечно, далеко не каждый владелец квартиры готов получить спальню или детскую площадью 8–9 кв. м. Но если иначе улучшить жилищные условия не выходит, вполне реально обустроить каждому члену семьи личное пространство в однокомнатной квартире.
В любом случае у каждого есть выбор, чем жертвовать: пространством или приватностью.
Фото и планировки: Никита Зуб
Как из однушки сделать двушку > Фото проектов
Сегодня поговорим о том, как можно из одной однокомнатной квартиры сделать двухкомнатную! Конечно, дополнительные квадратные метры к площади никак сами собой появиться не могут. Зато можно грамотно спланировать пространство так, чтобы вместо однушки получилась двушка. Как говорится, ловкость рук и никакого мошенничества!
Перепланировка может понадобиться по разным причинам. Если в распоряжении есть хотя бы 30-40 квадратных метров, из них можно слепить интересную планировку. Мы собрали для вас 10 идей и примеров того, как это можно сделать!
Делим одну комнату на две
Этот вариант подойдет, если вы не хотите трогать кухню, а единственная комната не меньше 16 метров.
1. Ниша
Проект с нишей на 30 квадратных метрах от нашего дизайнера Елены.
Если планировка предполагает наличие ниши в комнате, можно считать, что полдела сделано. Чаще всего в таких нишах размещают кровать, ведь место для сна больше других требует уединения. Отгородиться можно раздвижными дверями, шторами или фальшстеной из гипсокартона.
2. Двери
Проект с зонированием стеклянными дверями дизайнера legko.com Натальи.
А вот коллаж к проекту с зонированием с раздвижными дверями от нашего дизайнера Полины.
Изготавливаются по индивидуальному заказу и устанавливаются сплошной стеной от пола до потолка. Могут быть стеклянные, зеркальные, деревянные или из синтетических материалов. Плюсы: не придется возводить новую стену, и места такие двери почти не занимают. Минусы: Если в комнате только одно окно, придется выбирать, какому новому помещению оно отойдет.
3. Шторы
Этот вариант хорош тем, что он очень мобилен. Хочется одно большое пространство — открыл шторы, захотелось уединения — закрыл. Такой способ пожалуй самый бюджетный и быстрый. Видимо поэтому часто использовался во времена СССР, чем мог изрядно набить оскомину старшему поколению. Но сейчас существует такое разнообразие крутых штор, что зонирование этом способом снова набирает популярность.
4. Фальш окно
Еще один интересный вариант декора перегородки — фальш окно. Конечно, стекло в таком случае должно быть ударопрочным. А еще лучше матовым — и свет пропускает и уединение дает.
Переходим к большим площадям
5. Антресоль
Антресоль подойдет, если высота потолков больше трех метров.
6. Балкон
Дизайн-проект с функциональным балконом от дизайнера legko.com Натальи.
Если у вас большой балкон, не игнорируйте его. Лучше вложиться в качественное утепление и остекление и получить отдельную комнату, чем превратить балкон в скучную кладовку. О том, как круто и стильно можно обустроить балкон, у нас даже есть отдельная статья.
7. Декоративное зонирование
Этот вариант подойдет тем, кто хочет разделить помещение на зоны, но возводить сплошные перегородки не горит желанием. Такое зонирование интересно с точки зрения дизайна, но требует побольше свободного пространства.
Например, если у вас одна большая комната, с помощью такой перегородки и шкафа можно отделить спальное место от гостиной.
Или зону для гостей от кухни.
8. Кухня-гостиная
Проект кухни-гостиной от нашего дизайнера Натальи.
А вот еще один наш интересный дизайн кухни-гостиной от дизайнера legko.com Андрея.
Если в квартире достаточно большая кухня, можно разделить ее на две зоны: кухни и гостиной. Про это у нас даже есть отдельная статья. Зонирование в таком случае можно сделать визуально: цветом, разной отделкой пола и стен. Квартиры с такой планировкой сегодня все больше завоевывают российский рынок недвижимости и называются евродвушками. Эта идея не нова и появилась в Западной Европе еще в 1970-х годах. Тогда такие квартиры позиционировались как жилье для молодых одиноких людей и студентов.
Если вы смотрели сериал «Друзья», то наверняка помните, что герои в квартире собирались на большом диване, стоящим спинкой к кухне. Хорошее решение для тех, кто располагает большой кухней и любит задушевные посиделки с друзьями.
Перепланировка квартиры – задача не из легких. Сносить старые стены или возводить новые можно только по согласованию с жилищной инспекцией. А это довольно долго и затратно. Когда больших перемен не хочется, на помощь приходят разные варианты зонирования. Главное, – не перегружайте пространство. Квартира должна быть не только многофункциональной, но и стильной.
Читайте наши посты, подписывайтесь на рассылку, просвещайтесь в вопросах дизайна и живите легко!
30 лучших примеров от дизайнеров — INMYROOM
Сегодня редкий ремонт обходится без перепланировки. Уже никого не удивить разнообразием планировочных решений в просторных помещениях, где каждый для себя решает, где у него будет спальня, а где гостиная. Но что же делать тем, кому жилье досталось в типовом панельном доме, да еще и однокомнатное?
Профессиональные дизайнеры предложили несколько вариантов обустройства однушки в разных типах домах – панельных, кирпичных, блочных – и для разных типов жильцов.
Не забывайте: данные перепланировки требуют индивидуального рассмотрения и согласования.
32 квадрата в панельном доме II-49
Серия панельных домов II-49 (также распространено обозначение П-49) была спроектирована в середине 60-х для замены хрущевок К-7 и строилась до середины 80-х годов. Наружные стены здания выполнены из керамзитобетонных панелей марки М75 толщиной 300 миллиметров, внутренние стены – из крупных железобетонных панелей толщиной 140 миллиметров из бетона, перегородки – гипсобетонные панели толщиной 80 миллиметров. Дома этой серии кроме продольных несущих стен (две фасадные и одна внутренняя) имеют еще и поперечные несущие стены.
В случае с однокомнатной квартирой, несущей является стена между комнатой и кухней. Такая особенность этих домов не дает широких возможностей перепланировок. Максимум что можно сделать – это увеличить площадь санузла за счет коридора и сделать проем шириной 900 миллиметров в несущей стене, а также возводить дополнительные перегородки.
Дизайнер Ольга Бондарь предложила три беспроигрышных варианта перепланировки однушки площадью 32 квадратных метра для разных типов жильцов.
Однушка площадью 38 квадратов в П-44
Первые дома типовой серии П-44 начали строить в 70-е годы XX века. Архитектурными элементами и излишествами от своих предшественников они не отличались, но планировки квартир и новые технологии в домах этой серии на момент строительства стали просто революционными.
Из некоторых плюсов можно отметить удобные планировки, просторные кухни, прихожие, ванные комнаты. А из минусов – тот факт, что здесь все межквартирные и межкомнатные стены – несущие. Тем не менее дизайнер Ирина Фефелова грамотно продумала три варианта перепланировки квартиры площадью 38 квадратных метров. Один из них достаточно рисковый, зато позволил превратить однушку в полноценную двушку.
Квартира в панельном доме серии И-79-99
Серия И-79-99 разработана на базе серии ширококорпусных домов, совершившей несколько лет назад настоящий переворот в панельном домостроении.
Квартиры отличаются удобными планировками, в каждой предусмотрен эркер. Общая площадь однокомнатной квартиры составляет чуть больше 43 квадратных метров. Площадь комнаты – 17,94 квадратного метра, площадь кухни – 10,22 квадратного метра. Дизайнер Максим Панин рассмотрел три варианта перепланировки помещения – два из них будут идеальны для холостяка, а один – для молодой пары.
Однокомнатная квартира в типовом панельном доме серии И-155
Перепланировка однокомнатной квартиры часто преследует цель визуально увеличить площадь и организовать различные зоны – общественную, рабочую, отдыха. Дизайнеру Николаю Твердову это удалось: предложенные им 3 варианта планировки однушки площадью 40 квадратных метров в доме серии И-155 будут актуальны для семьи с ребенком, молодой пары и холостяка.
Серия домов типа И-155 была разработана в 2000 году. Главная особенность зданий состоит в том, что при одной и той же конструктивной схеме можно собирать дома разных конфигураций, разной этажности и с разными типами квартир.
Дома могут быть как башенного типа, так и многосекционные.
33 квадратных метра в панельном доме серии I-507
Создать комфортное пространство для жизни в однушке – задача, требующая от профессионала опыта и умения экспериментировать. Особенно если в квартире проживает семья: ведь нужно не только предусмотреть отдельные спальни для родителей и ребенка, но и по возможности спланировать гостиную зону и тщательно продумать системы хранения, не загромождающие интерьер. Дизайнер Ксения Чупина предложила 3 интересных варианта перепланировки однокомнатной квартиры: для холостяка, молодой пары и семьи с ребенком.
30 квадратов в блочном доме серии II-68
Серия блочных домов II-68 стала основой для создания целого ряда типовых зданий: II-68-02, II-68-03. Главное достоинство этой серии домов – обширные лоджии, которые при правильном утеплении могут значительно увеличить жилую площадь. В некоторых домах однокомнатные квартиры имеют проемы между кухней и комнатой, что значительно упрощает перепланировку и особенно актуально при площади около 30 квадратных метров.
Удачной инновацией для застройки тех времен стала и гардеробная – тогда ее называли кладовой.
Дизайнер Максим Панин рассмотрел 3 варианта перепланировки такой квартиры для разных типов жильцов – семьи с ребенком, молодой пары и холостяка, создав для последнего грамотно зонированное открытое пространство.
Однушка в блочном доме И-209А
И-209А – блочные 14-этажные дома башенного типа, которые развивают идеи серии II-18. В основном эти дома строились в 1970–1980 годах. Однокомнатные квартиры в доме этой серии имеют широкие возможности перепланировки в связи с тем, что несущими являются внешние стены квартиры (и стена между комнатой/кухней и балконом). Остальные перегородки можно демонтировать и переносить. Дизайнер Ольга Бондарь предложила три варианта планировки однушки общей площадью 34,8 квадратного метров (жилой — 19,44 квадратного метра). Не забывайте: любую из представленных по ссылке перепланировок необходимо узаконить.
Однокомнатная квартира в новостройке
Комната одна – возможностей много.
Это утверждение справедливо для современных однушек в новостройках. Среди явных преимуществ – увеличенная площадь. Однокомнатная квартира площадью 52 квадратных метра в П-111М сравнима с двушкой, построенной годами раньше.
Есть в этой квартире и гардеробная комната: ее наличие и расположение продумывают еще застройщики, а будущему владельцу остается только решить: использовать гардеробную по назначению – хранить там одежду, или все-таки задействовать эти драгоценные квадратные метры для других полезных пространств.
Три варианта перепланировки однушки в П-111М предложил дизайнер Максим Панин.
Угловая однокомнатная квартира в 1-511
По мнению многих специалистов, угловые однушки возглавляют хит-парад некомфортных для проживания квартир: 2 оконных проема в комнате не только не способствуют теплоизоляции, но и часто создают проблемы с расстановкой мебели. Дизайнер Ольга Бондарь предложила 3 варианта перепланировки угловой однушки в типовом доме серии 1–511 и развеяла миф о безвыходном положении владельцев таких квартир.
Однушка в панельном доме серии П-43
Общая площадь однокомнатной квартиры в доме серии П-43 составляет 35–37 квадратных метров, жилая – 18–20 квадратных метров. Санузел в квартире совмещенный, толщина внешних стен – 35 сантиметров, внутренних железобетонных несущих конструкций – 18 сантиметров и перегородок – 12 сантиметров.
Пожалуй, самый существенный недостаток планировки этой квартиры заключается в несущей стене, соединяющей кухню и жилую комнату. В остальном планировка свободная и, конечно, большой плюс – наличие лоджии. Чтобы увеличить пространство такой однушки можно присоединить лоджию к кухне, расширить или перенести проем в несущей стене и демонтировать все ненужные перегородки. Как это сделать, показала дизайнер Ксения Чупина.
Школа дизайна: как на 29 квадратных метрах сделать двухкомнатную квартиру :: Ваш дом :: РБК Недвижимость
В однокомнатной московской квартире площадью 29 кв.
м дизайнеры нашли место для гостиной, спальни, гардероба и кухни
Дизайнер: Мария Дадиани
Объект: однокомнатная квартира Площадь: 28,8 кв. м Расположение:
В своей постоянной рубрике «Школа дизайна» редакция «РБК-Недвижимости» на реальном примере показывает удачные идеи и решения для оформления жилища.
Дизайнер Мария Дадиани не только создала в типовой московской квартире интерьер в эстетике американского ар-деко, но и превратила ее из однокомнатной в двухкомнатную.
Планировочное решение
Изначально квартира была поделена на маленькую кухню (4,8 кв. м), проходную жилую комнату (19,3 кв. м) и крошечный санузел (2,4 кв. м), дверь которого открывалась в прихожую (2,3 кв. м), не давая разместить в ней даже небольшой шкаф для одежды.
Все внутренние перегородки в квартире оказались ненесущими, это дало простор для новой, студийной планировки. Дизайнер объединил кухню и комнату, но выделил зону для спальни с большим встроенным гардеробом. Спальню решили изолировать от общего пространства, задернув декоративную штору.
Диванная зона отделена от кухни барной стойкой, которая выполняет функции обеденного, фуршетного и рабочего стола. Вход в санузел перенесли. По мнению автора проекта, за счет этого удалось рационально организовать пространство помещения.
В коридоре теперь нашлось место для шкафа и кресла. Там же сделали подсобный шкаф со стиральной машиной и дополнительными местами для хранения, что позволило освободить ванную от лишних хозяйственных предметов.
Проектировка потребовала точности, ведь ошибка всего в 5 мм могла привести, к тому, что в ванной комнате не поместились бы унитаз, раковина или душевая кабина. По той же причине почти вся мебель была произведена на заказ по эскизам дизайнера. Например, диван в гостиной заказали только после установки барной стойки, которую, в свою очередь, пришлось укоротить для обеспечения более просторного прохода в зону кухни.
Оформление
Отправной идеей для дизайна интерьера послужило зеркало, размещенное при входе в квартиру. Цвет, фактура и форма его рамы ассоциируются со знаменитым нью-йоркским небоскребом Крайслер-билдинг.
Все цвета в интерьере перекликаются между собой – оттенки серого и бежевого, черный, белый, серебряный, золотой, шампань. В отделке пола гостиной и спальни использовалась паркетная доска – тонированный дуб нордик. Такой оттенок выбран, поскольку светлое покрытие создает ощущение легкости и позволяет видеть текстуру натурального дерева.
Практически вся мебель светлого тона.
Зеркала в створках гардероба дают ощущение дополнительного пространства. Необходимый контраст задают аксессуары, чугунные радиаторы графитного цвета и черная кухонная мебель, украшенная сусальным золотом.
Для каждого помещения продумано несколько сценариев освещения. Хрустальные люстры в гостиной создают интересную игру света и привносят элемент торжественности в интерьер, характерный для эпохи ар-деко.
Кухня-гостиная
Кухонный гарнитур и телевизионная консоль выполнены по эскизам дизайнера в российской компании «Стильные кухни». Обои – от немецкой фирмы Rasch. Напольная плитка – итальянского производителя Petracher’s. Паркетная доска – Tarkett. Люстры и некоторые аксессуары – от голландской компании Eichholtz. Рама для телевизионной консоли выполнена на заказ в багетной мастерской «Джоконда».
Спальня
Встроенный шкаф – «Стильные кухни». Текстильные обои – от компании Rasch. На полу использован тот же паркет, что и в гостиной, – от Tarkett.
Бра – от Eichholtz.
Санузел
Решение для санузла предполагалось максимально легкое и ненавязчивое, поэтому предпочтение было отдано практически белой испанской плитке Adex. Чтобы пространство не выглядело скучным, появились акценты: итальянские смесители Guilini с черными кристаллами Swarovski и черные вставки на мраморном полу.
Коридор
В коридоре пол выложен метлахской плиткой от Topcer, элементы из плитки разного размера собраны в геометрический рисунок, перекликающийся с мраморным полом в санузле, плиткой из керамогранита на кухне и цветовым решением интерьера в целом.
Встроенный шкаф – IKEA. Стеганое кресло и бра – Eichholtz.
Критика
Архитектор Михаил Даутов:
– Открытая студийная планировка мне понравилась. По-другому перепланировать эту квартиру с учетом российского законодательства, запрещающего переносить мокрые зоны, практически невозможно.
Понравилось и грамотно выбранное светлое оформление квартиры.
Однако не совсем понятно, зачем реализовывать столь помпезный стиль в таком маленьком помещении. Достаточно было сделать пару акцентов. Понятно, что подобные интерьеры нравятся многим заказчикам – ведь ими заполнены страницы глянцевых изданий. Но следует учитывать масштаб. Стиль ар-деко не был создан для московских однокомнатных квартир. В них, на мой взгляд, он выглядит несколько наивно. Похоже на домик для Барби.
Антон Елистратов
Как из однокомнатной квартиры сделать двухкомнатную: до и после
Приобретение собственной жилой площади для современных молодых людей – это значимое событие, даже если квартира малогабаритная, однокомнатная. Но, по мере того, как наши нужды меняются и все возрастают, может возникнуть необходимость в дополнительных комнатах. Это особенно актуально, если в семье появляется ребенок, и вопрос об увеличении или изменении пространства однокомнатной квартиры обстоит довольно отчетливо.
Как сделать перепланировку однокомнатной квартиры мы расскажем и покажем на примерах в нашей сегодняшней статье.
Перенос кухни
На плане видно, что в квартире имеется отдельная кухня, совмещенный санузел, маленькая прихожая, основная комната, которая представляет спальню и гостиную, а также, большая лоджия, откуда можно выйти в комнату и в кухню.
Зачастую, для того, чтобы разграничить единое пространство, и сделать его более функциональным, используют статичные, или мобильные перегородки. Но в комнате с одним окном в образованной зоне может быть не достаточно света, а это уже недостаток.
Если в такой квартире живет молодая пара с маленьким ребенком, — в основной комнате будет достаточно места и для кровати родителей, и для детской кроватки. Но по мере взросления ребенка, ему понадобится другая мебель и большее количество разнообразных вещей, не говоря уже о личном пространстве.
Превратить подобную квартиру в двухкомнатное жилье можно, и главное, — это не потребует возведения дополнительных стен.
Прежде всего, следует оценить размеры закрытого балкона, то есть, лоджии. Если его ширина, в среднем, составляет 1,5 м, и так же, как на плане ниже, пространство имеет два выхода, — здесь можно разместить всю необходимую кухонную мебель и технику, небольшую обеденную группу. Конечно, придется перенести коммуникации, но если мойка ранее находилась возле окна, — проблем не будет.
Итак, в результате перемещения кухни на лоджию, у вас появится свободная комната, в которой легко поместится односпальная кровать, шкаф и письменный стол для ребенка. В гостиной же освободится место для рабочего стола, дополнительного шкафа или встроенной гардеробной, о которой вы так давно мечтали.
1
Использование перегородок
Предположим, что планировка однокомнатной квартиры не предусматривает просторную лождию, но разделить комнату все-таки нужно.
Обратите внимание на план, показанный ниже: одна большая комната только визуально (с помощью стеллажа или консоли) разделена на две функциональные зоны: гостиную и спальную.
Пространство воспринимается довольно обширным, но ни о каком уединении или полноценном отдыхе не может быть речи.
Следовательно, мы предлагаем возвести перегородку на периферии между спальней и гостиной, а также, снести стену (если она не несущая), разделяющую кухню и гостиную. В том случае, если изначально в комнате, кроме выхода на балкон, есть еще одно окно, после возведения новой стены образуется полноценное отдельное помещение. А в кухне-гостиной сохраниться объем и функциональность, бывшие при предыдущем варианте планировки
2
1
1
проекты стандартных планировок, дизайн интерьера в современном и другом стиле
Дизайн однокомнатной квартиры может быть очень красивым и оригинальным, несмотря на маленький метраж.
К примеру, в условиях 36 кв. м можно обустроить очень уютные интерьеры, выглядящие стильно и привлекательно. В этой статье пойдет речь о том, каким может быть дизайн однокомнатных квартир с такой квадратурой.
Планировка
Прежде чем приступать непосредственно к обустройству 1-комнатного жилья с площадью 36 кв. м, целесообразно озаботиться составлением подробного проекта. При этом важно учитывать буквально каждый сантиметр имеющегося пространства. На схеме потребуется указать точную расстановку всех мебельных конструкций, декораций, аксессуаров и прочих составляющих.
Однокомнатные квартиры, находящиеся в панельном доме, возможно оформить как стандартные жилплощади, либо переделать их в модную студию.
Обыкновенное жилье с одной комнатой является неплохим вариантом для семьи, которая состоит из двух человек и более, поскольку здесь имеется одна полноценная комната, есть возможность уединения.
![]()
Можно переоборудовать однокомнатное жилье в квартиру-студию. В указанных условиях более комфортным окажется проживание одного человека либо семейной пары. Конечно, многое зависит от метража такого жилища, но в квадратуре 36 кв. м большему количеству человек жить будет не очень комфортно.
Если в качестве основной планировки была выбрана студия, то очень важным будет правильный выбор мест расположения мебели, разной техники и прочих деталей.
Однокомнатную квартиру 36 кв. м вполне возможно превратить в двухкомнатную, не прибегая при этом к капитальному ремонту. Чтобы разделить имеющуюся площадь, устанавливают легкие гипсокартонные перегородки, либо расставляют шкафы достаточной высоты. Если подобная перепланировка осуществляется в условиях квартиры, оснащенной только одним окном, то лучше оставить его в детской зоне.
За счет грамотной перепланировки однокомнатной квартиры с площадью 36 кв. м удастся не только качественно разделить пространство, но и выделить в нем определенные функциональные зоны.
Можно будет визуально скорректировать имеющуюся жилую площадь, заметно прибавляя ее размеры.
Зонирование пространства
Квартиры, в которых нет большого количества свободных комнат, часто приходится условно разделять на определенные функциональные зоны. Реализовать зонирование жилой площади не составляет труда. Рассмотрим, как именно можно это сделать.
-
Зонировать определенные территории в однокомнатной квартире можно посредством разных отделочных материалов. К примеру, на полу в гостиной зоне можно постелить ковролин, а в совмещенной зоне для спального места допустимо положить ламинат.
Подобный контраст материалов может касаться не только напольных покрытий, но и обоев и даже облицовки потолка. Таким образом «линия» разделения зон будет сразу заметна.
- Часто зонирование делают посредством предметов мебели. Это может быть диван (как прямой, так и угловой), шкаф, стол, барная стойка и другие конструкции. С их помощью можно сразу отделить одну зону от другой. Это очень удобное решение, к которому обращаются многие владельцы малогабаритных жилищ.
- Зонировать жилую площадь можно посредством многоуровневых конструкций. К примеру, кровать, относящуюся к спальной зоне, можно поставить на не очень высокий подиум, оставив мебель, относящуюся к гостиной территории, на уровень ниже. Подобное решение выглядит очень стильно и современно.
- Неплохое решение – использование специальных мобильных и стационарных перегородок.
Их делают из самых разных материалов – из стекла, пластика, дерева и так далее. Посредством подобных элементов можно не только отделить определенную территорию в квартире, но и ненавязчиво задекорировать интерьер.
Существует достаточно способов эффективного зонирования однокомнатной квартиры малой площади. Каждый хозяин выбирает сам, какой из вариантов для него лучший и удобный.
Стили
Несмотря на то что площадь 36 квадратных метров является скромной, здесь все равно можно воплотить в жизнь очень много интересных дизайнерских задумок. Есть все шансы составления классных интерьеров, выдержанных в самых разных стилях.
Узнаем, какими отличительными чертами обладают стилевые направления, идеально подходящие для небольших «однушек».
-
Минимализм. Название этого стиля говорит о многом. Минималистичные интерьеры наполнены только самым необходимым и важным. Перегруза декора и разных ненужных мелочей здесь не бывает. Характерно преобладание спокойных однотонных поверхностей, лишенных пестрых принтов и украшений. Стиль идеально подходит для небольшой жилой площади.
- Хай-тек. Современное стилевое направление, которое шикарно впишется в интерьер малогабаритной квартирки. Если обстановка выполняется в этом стиле, то в ней будет преобладание современных материалов, таких как пластик, металл, хром, стекло, кожа и других. Здесь целесообразно найти место для большого количества разных девайсов и интересной домашней техники. Стиль тоже хорошо подходит для небольших площадей. Является очень популярным.
- Модерн.
Не менее популярное направление. Его чаще всего выбирают те люди, которым нравятся оригинальные мебельные конструкции. Модерн примечателен тем, что в нем преобладает мебель, имеющая красивые плавные линии. Тут стоит вспомнить о том, что в маленьких квартирах угловатые конструкции не приветствуются, поэтому рассматриваемый стиль станет удачным решением.
- Экостиль. Классный стиль, который нравится очень многим людям. Он привлекателен тем, что гармонично вписывается практически в любые помещения с любой квадратурой. Экостиль предполагает применение натуральных высококачественных материалов. Приветствуется наличие живых растений и зелени, деревянных фактур.
- Лофт. Чердачный стиль, отличающийся грубоватой брутальностью, простотой и нетривиальностью. Интерьеры в стиле лофт могут быть дополнены однотонной мебелью спокойных и темных оттенков.
Приветствуется наличие металлических деталей, а также деревянных поверхностей, выглядящих грубовато. Особенно гармонично в подобных обстановках смотрится отделка в виде каменной или кирпичной кладки. В маленьких квартирах такой стиль реализовать бывает труднее, нежели в просторных жилых площадях.
- Прованс. Стиль французской провинции станет удачным решением для романтичных натур, предпочитающих делать выбор в пользу пастельных красок. Для прованских интерьеров характерно присутствие милого текстиля с цветочными или животными принтами, наличие мебельных конструкций из натурального дерева. Вся мебель здесь должна быть выдержана в спокойных тонах.
- Скандинавский. А это направление идеально подходит для небольшой «однушки». Сам по себе скандинавский стиль создает впечатление приятной прохлады.
В нем оттенок стен и пола могут быть очень похожими. Для отделки чаще выбираются белые, молочные, бежевые, бело-голубые покрытия. Желательно подбирать мебельные конструкции, изготовленные из натуральных материалов. Приветствуются изделия с простыми и правильными линиями.
Настоятельно не рекомендуется выбирать для небольшой однокомнатной квартиры такие стили, как барокко, ампир или рококо. Указанные направления предназначены для очень больших и роскошных залов. Примечательны демонстративным шиком, богатством, блеском драгоценных металлов и дорогих тканей.
Выбор мебели
Рассмотрим, какую мебель выбрать для 1-комнатной квартиры с метражом 36 м2.
-
Лучше всего покупать мебель, которая выдержана в светлых тонах. Изделия не должны быть темными и слишком крупными.
Размеры мебели не должны перегружать и без того маленькое пространство, делать его тесным.
- Отличным решением станут конструкции-трансформеры. Их можно разложить, а потом снова сложить и убрать в сторонку. Подобные изделия очень популярны и удобны.
- Прекрасно подойдут угловые конструкции, например, Г-образный диван, угловые столики и тумбы. Такие конструкции отличаются высокой функциональностью, но при этом не отнимают слишком много свободного места.
- Угловая мебель хороша не только благодаря особенностям своего строения, но и тем, что с ее помощью можно эффективно разделить пространство на обособленные зоны. Очень часто для таких целей используют угловые диваны, разделяя ими гостиную и столовую.
- Приветствуется наличие мебели, дополненной зеркальными и стеклянными вставками.
К примеру, это может быть шкаф с зеркальными створками или раздвижными дверцами. Благодаря отражающим деталям комната будет визуально казаться более просторной.
- Рекомендуется отдавать предпочтение мебели, оснащенной не распашными, а раздвижными дверцами. Изделия с подобными элементами отнимают гораздо меньше места при эксплуатации.
- Для кухни целесообразно покупать бытовую технику встраиваемого типа.
Лучше всего подбирать такие устройства, которые имеют не слишком большие размеры.
- Очень важно подбирать и расставлять мебель для небольшой квартиры так, чтобы она не перекрывала проходы, не закрывала доступ к другим объектам в помещении. Чтобы не сталкиваться с подобными проблемами, необходимо покупать изделия подходящих размеров.
Конечно же, мебель, подбираемая для малогабаритной «однушки», обязательно должна соответствовать стилю, в котором выполнен интерьер. Только при соблюдении этого условия можно говорить о привлекательности и сбалансированности всей обстановки.
Каким способом лучше превратить однокомнатную квартиру в двухкомнатную
Многие владельцы маленьких квартир задумываются над тем, как сделать из однокомнатной квартиры двухкомнатную.
Чаще всего эта потребность появляется в семье, где подрастают дети, но иногда даже один человек, проживающий в однокомнатной квартире, испытывает желание отделить спальную зону.
Вариантов такой реформы имеется множество, только вот каждый из них рассчитан на реорганизацию помещения определённого размера, определённой конфигурации. Способов раздела тоже достаточно, но их выбор зависит большей частью от того, что хотят видеть в результате перепланировки владельцы жилья – только визуальное разделение помещения на части, либо зонирование перегородками, которые защищают от шума.
Разумный подход к перепланировке позволяет получить двухкомнатную квартиру, не проводя согласование перепланировки с вышестоящими организациями. Для этого важно не прикасаться к несущим стенам, а все остальные переделки в комнате касаются только самого владельца жилья.
В стандартной однокомнатной квартире невозможно разделить помещение таким образом, чтобы в каждой из полученных комнат имелось окно.
Устройство перегородки вдоль помещения превращает его в две длинные и очень узкие комнаты, неудобные для проживания и непривлекательные визуально. Значит, придётся для одной комнаты отказаться от источника света, устроив перегородку поперёк помещения.
Использование перегородки из гипсокартона
Самый простой, но далеко не самый популярный способ, которым проводится перепланировка однокомнатной квартиры в двухкомнатную – установка гипсокартонной перегородки поперёк помещения. С помощью перегородки со встроенной в неё дверью владельцы жилья получают две отдельные комнаты.
Узнайте у нас, как грамотно использовать и изготовить перегородки и арки из гипсокартона.
Как своими руками оформить зал в маленькой квартире вы с легкостью узнаете из нашей статьи.
Оригинальное и простое решение для необычного дизайна — интерьер с кирпичной стеной.
Гипсокартонная перегородка монтируется с помощью металлического профиля, на который крепятся листы гипсокартона.
Если между листами будет уложен слой звукоизоляционного материала, то это позволит не беспокоиться о звуках, проникающих сквозь пустотелую перегородку.
Главный минус устройства глухой перегородки – отсутствие естественного освещения, придётся позаботиться о качественном освещении светильниками. Однако всё-таки имеется способ получения и небольшого количества света из естественного источника.
Для этого в гипсокартонной перегородке делается оконный проём, оборудованный стеклопакетом, имеющим защиту от шума. Для экономии пространства, столь необходимого для установки мебели, двери в перегородке лучше устанавливать раздвижные, сберегая этим жизненно важные сантиметры площади.
Шкаф-купе в роли перегородки
Поскольку изготовленные на заказ шкафы-купе могут быть самой разнообразной конфигурации, то очень удобно использовать эту современную конструкцию для перепланировки однокомнатной квартиры в двухкомнатную. В отличие от варианта из гипсокартона, шкаф-купе выполняет одновременно две функции: делит пространство на две части и выделяет место для хранения вещей.
При этом его использование даёт возможность устройство конструкции, при которой внутреннее пространство будет использоваться с обеих сторон шкафа, предусмотреть наличие двери, а также застеклённого проёма для проникновения естественного света.
Понятно, что площадь шкаф-купе будет занимать большую, чем при использовании гипсокартона, но не следует забывать, что в предыдущем варианте потребуется место для установки шкафа. Шкаф-купе будет использовать пространство до самого потолка, поэтому вместимость его гораздо больше стандартного шкафа для одежды.
При вдумчивом подходе к внутренней планировке, хранить в шкафу-купе можно самые разнообразные вещи очень компактно, а верхнюю, менее доступную часть, использовать для хранения предметов, используемых не слишком часто.
Оба варианта предусматривают реконструкцию освещения: в каждой из полученных комнат устанавливают люстру и нижние источники света. Итогом такой перепланировки становится получение двух небольших, но полноценных комнат.
Обычно при наличии в семье детей комната с окном становится детской, а вторая служит одновременно гостиной и местом для сна родителей.
Стеллаж для разделения комнаты
Если проживает в однокомнатной квартире всего один жилец, то чаще всего нет необходимости в глухой перегородке. В этом случае для отделения спальной или рабочей зоны используют стеллажи. Конструкция стеллажей может быть как закрытой, так и открытой – всё зависит от желания владельца жилья.
Стеллаж для разделения комнаты на зоны может быть не только функциональным предметом, но украшением интерьера. Оформление полок стеллажа дверцами с витражными стёклами сделает его нарядным, придаст конструкции оригинальность, а цветы, установленные на его полках, могут превратить часть комнаты в уютный уголок для отдыха.
Перепланировка и перенос кухни
Поскольку однокомнатная квартира в хрущевке часто имеет кухню, отделённую от комнаты лёгкой перегородкой, то для её сноса разрешения не требуется, поскольку стена не является несущей.
Часто перепланировка хрущёвки проводится через объединение комнаты с кухней с последующей установкой перегородки. Это весьма привлекательный вариант, так как в итоге получается спальня либо детская комната, имеющая окно, и светлая гостиная, объединённая с кухней.
Есть еще один вариант реорганизации пространства. При нем перепланировка проводится путём ликвидации кладовки и присоединения её к одной из комнат.
Перепланировка и возведение второго этажа
В центральной части больших городов еще используются для жилья дома, построенные в те времена, когда на высоте помещений не экономили. В некоторых из них расстояние от пола до потолка достигает четырёх метров. Однокомнатная квартира в таких зданиях легко превращается в двухкомнатную с помощью возведения второго этажа.
Этот оригинальный вариант расширения жилой площади выполняется с помощью возведения в части комнаты прочной конструкции, где размещается либо спальное место родителей, либо детская комната, если возраст ребёнка позволяет ему самостоятельно пользоваться ведущей туда лестницей.
Второй ярус в комнате чаще всего используется как спальное место, а остальное пространство играет роль гостиной комнаты. При таком переустройстве следует позаботиться о хорошей вентиляции помещения, иначе на втором этаже может быть слишком душно.
Посмотрите, как собственными руками сделать неповторимым и функциональным дизайн кухни-гостиной в доме.
Дизайн маленькой спальни может быть преображен до неузнаваемости без особых усилий. Как именно? Узнайте здесь.
Итог
Поскольку квартирный вопрос в наши дни решается сложно, владельцы однокомнатных квартир используют различные способы модификации жилья, стараясь сделать проживание в них более комфортным. Одни варианты получается удачными, другие – не слишком, ведь многое зависит от имеющейся площади квартиры. Важно то, что для семьи иметь две маленькие комнаты всё-таки лучше, чем одно помещение размером побольше.
Варианты перепланировки однокомнатной квартиры в двухкомнатную смотрите здесь (фото):