как из однушки сделать двушку, способы, лучшие идеи и особенности реализации жилья с разными размерами (35, 40, 42 44, 52 кв. м)
Перепланировка однокомнатной квартиры – частый вопрос новых хозяев маленькой жилплощади. Как использовать свободные метры, спланировать главные зоны, но в то же время сохранить уют? В настоящее время много информации по этому поводу, а также фирм, занимающихся подобной проблемой.
Особенность и сложность задачи
Как правило, однушки не обладают большой площадью. Только одно помещение отводится под жилую комнату и если площадь менее 44 кв. м, то разграничить функциональное пространство довольно сложно. Но все же существуют способы выполнить перепланировку.
Варианты перепланировки 1 комнатной квартиры практически все основываются на:
- присоединение балкона;
- перенесение кухни;
- разделение перегородкой комнаты;
- в редких случаях постройки второго уровня.
Конечно же, если однокомнатная квартира имеет площадь 45 м2, то, скорее всего, жилая комната или кухня довольно большие. Если жилплощадь весьма просторная, то часть комнаты можно отгородить для той же детской или гостиной.
Если же кухня площадь 12 кв. м, то лучше попробовать отвести ее под жилую комнату. Но здесь встает вопрос, а разрешат ли. Ведь в законе четко прописаны разрешения, запреты, отступать от которых не рекомендуется. Рассмотрим этот вопрос подробнее.
Как разработать и узаконить проект
Если вы решили модернизировать свое жилье, не стоит экономить время, бюджет на согласовании данных работ. Обычно это «выходит боком». Во-первых возникнут проблемы при продаже. Во-вторых, по незнанию, вы случайно можете убрать несущую конструкцию или ослабить ее, что приведет к трещинам в здании или разрушениям.
Первым делом необходимо обраться в органы местного самоуправления и БТИ (бюро технической инвентаризации), уточнить все нюансы по согласованию перепланировки однокомнатной квартиры.
Для разработки проекта перепланировки однокомнатного жилья, согласования, проверки вашего варианта, обратитесь в департамент архитектуры или другим специалистам, которые имеют соответствующее право.
Более подробную информацию по узакониванию перепланировки можете изучить в данной статье.
Основные требования
Главное условие к проекту: любое изменение планировки однокомнатной квартиры должно быть согласовано с соответствующими органами. Во время этой процедуры вы ознакомитесь со всеми нюансами, подберете вариант, который удовлетворит вас. Специалисты подскажут, где находятся несущие конструкции, количество квадратных метров, которые можно задействовать под жилое помещение, насколько возможно изменение его площади. К тому же запрещено увеличивать нагрузку на несущие стены, на плиты перекрытия. Новая стяжка для выравнивания пола не должна быть толще, чем 5 см, а новые межкомнатные перегородки не должны превышать толщину в 7 см.
Требования к перепланировке
Запрещено делать изменения, которые видоизменят фасад дома (панорамные окна, застекление балкона). Нельзя делать на балконе теплый пол от центрального отопления, а также устанавливать там отопительные приборы.
Запрещено расширять коридор, ванну, кухню в ущерб спальне. А кухня должна изолироваться от жилой комнаты. На кухне нельзя перемешать или убирать вытяжки и воздуховоды.
Запрещено устанавливать приборы, которые увеличивают или уменьшают потребление ресурсов (перекрывающие вентиля, дополнительные батареи).
При нарушении правил БТИ собственник несет ответственность, в случае их обнаружения будет оштрафован. Также, он будет должен вернуть однокомнатной квартире первоначальный вид. Но все же существуют лазейки обойти некоторые правила, сделать достойную и правильную перепланировку.
Варианты переделки
Идей перепланировки однокомнатной квартиры довольно много. Возможно изменение площади жилой зоны, от уменьшения санузла и прихожей, до зонированием пространств предметами (шкафы, полки, гипсокартонные перегородки). Рассмотрим основные возможные варианты перепланировки 1-комнатного жилья.
Визуальная перепланировка
Если ваша однокомнатная квартира имеет площадь 33-42 кв. м, то можно повысить качество жизни, сделав зонирование пространства. Небольшая площадь может быть разделена шкафом или стеллажом. Такой вариант не только уменьшит донесение различных шумов из других частей комнаты, но и визуально разделит комнату на зоны. За шкафом обустраивают спальню, если хозяева не любят, когда семейное ложе всегда на виду. При этом части помещения станут самостоятельными функциональными зонами. Получится детская или спальная зона. Дизайн и декор почерпнут индивидуальность пространства.
Визуальное разделение пространства
Делаем студию
Если однокомнатная квартира около 30-35 кв. м, то можно переделать ее в студию. Перегородки «съедают» полезное пространство. Прихожая и кухня станут частью общей комнаты, но зато пространство становится функциональным.
Из однокомнатной в студию
Если все же есть необходимость изолирования кухни и коридора, то можно установить подвижный шкаф. На такой стене размещается телевизор, проектор, навесные шкафы, полки, что также сэкономит небольшую площадь.
Делаем двухкомнатную
Перепланировка однокомнатной квартиры 52 м2 дает широкие возможности по сравнению с однушками с площадью 32-40 кв. м. Сделать из однушки двушку можно путем отделяющей перегородки. Перегородка может быть выполнена из матового стекла, раздвижных дверей, деревянных стеллажей или конструкции из гипсокартона. Достаточно поставить перегородку, разделить помещения либо установить дверь и получится детская или небольшая спальня.
Из однушки в двушку
Такая перепланировка превращает одну комнату в две. При установке стеклянной перегородки и раздвижных дверей есть один плюс. Если их раздвинуть, можно объединить пространства, получить шикарную студию. При использовании деревянных стеллажей отлично экономится с пользой пространство для хранения вещей (книги, техника, различные аксессуары). Помещение за гипсокартонной конструкцией можно отдать детской комнате или превратить в маленькую спальню.
К тому же можно совместить кухню и комнату, получится большая столовая. Перепланировка однокомнатной квартиры в двухкомнатную тоже возможна. Зависит от размера помещения, фантазии, финансов, так как самые интересные идеи требуют больших вложений для их воплощения.
Расширяем пространство за счет балкона
Целесообразным будет присоединение лоджии или балкона к комнате или кухне, при площади однокомнатной квартиры в 33 кв. м. Площадь помещения за счет балкона (лоджии) существенно увеличиться. Также, это считается одним из вариантов перестройки однушки в двушку. Переустройство однокомнатной квартиры выходит, если бывшую кухню перенести на балкон, а вместо нее обустроить спальню. Таким образом, получится небольшая двухкомнатная квартира.
Расширяем кухню за счет балкона
На балконе обустраивают рабочий кабинет или игровую зону для детей, гардеробную комнату или небольшой тренажерный зал.
Проблема такого варианта в том, что тяжело добиться разрешения на перепланировку. Также необходимо заняться отоплением данной зоны. При централизованном отоплении это также становится проблемой.
Однокомнатная квартира с высокими потолками
Если в однокомнатной квартире высокие потолки (не менее 3,5-4 м), то можно сделать второй этаж. Такие варианты жилья называются двухуровневыми. Для воплощения, потребуется возвести конструкцию второго этажа и лестницу, которая займет место. Лестница чаще всего используется винтовая из-за своей компактности. Помимо этого второй этаж надо усилить металлоконструкциями или колоннами. Такой вариант однокомнатной квартиры проблематично осуществить из-за узаконивания, но все же реально.
Однокомнатная квартира с высокими потолками
Двухуровневая квартира дает возможность в полной мере использовать все пространство. На втором этаже можно сделать спальню, а первый этаж останется для приема гостей, кухни и санузла.
Популярные варианты
Существует несколько вариантов перепланировок однокомнатных квартир. Среди них выделяют:
- Добавление к жилой зоне балкона;
- Переделка в студию;
- Объединение санузла;
- Снос не несущих стен и заменой их стеллажами или мебелью;
- Зонирование кухни.
При выборе вида перепланировки стоит учитывать особенности однокомнатной квартиры и желания членов семьи. Например, если хозяин работает дома, то необходимо отвести место для кабинета. Если в семье дети, то необходимо зонирование на игровую зону и детскую спальню. Можно сэкономить место, если совместить в одной зоне кухню, столовую и гостиную. Для этого подойдет компактный угловой диван, раскладной стол и пара небольших стульев без спинки.
Пример перепланировки
😍 Как переделать однокомнатную квартиру в двухкомнатную: схемы, проекты, советы
Не у всех есть возможность приобретения квартиры большей площади, чем имеющаяся. А между тем иногда человеку необходимо место, где он мог бы уединиться. Особенно это касается однокомнатных квартир. И чаще здесь даже не вопрос уединения, а необходимость отделить спальное место от основной комнаты, в которой могут бывать гости. В сегодняшней статье будет рассмотрено 5 вариантов законной переделки однокомнатной квартиры в двухкомнатную со схемами планировки, для которых не требуется специальных разрешений.
Перепланировка однокомнатной квартиры – задача непростаяФОТО: remontexperts.ru
Содержание статьи
Что такое переделка и чем она отличается от перепланировки
Многие путают эти два понятия, не делая между ними различий. На самом деле перепланировка потребует от владельцев огромного времени, хождений по инстанциям для получения необходимых разрешений. При этом не факт, что в итоге они будут получены. Попробуем разобраться с основными критериями понятия «переделка».
К подобному следует быть готовым, затевая перепланировкуФОТО: спецстрой37.рф
При переделке однокомнатной квартиры в двухкомнатную не потребуется разрешений на следующие виды работ:
Вот, собственно, и всё. Любые действия с существующими перегородками уже потребуют согласования перед началом работ или по факту их выполнения. Однако в последнем случае может получиться ситуация, когда перепланировка не прошла согласование. В этом случае собственника обяжут вернуть помещения в первоначальный вид.
Главное, чтобы стены не оказались несущимиФОТО: msk.uslugi-online.info
Перепланировка с реальной точки зрения и со стороны закона
Несмотря на то, что любая перепланировка должна быть согласована, на деле всё немного иначе. Большинство владельцев не утруждают себя хождением по инстанциям и самостоятельно демонтируют или переносят межкомнатные перегородки (к несущим не относится). Такие действия чреваты лишь возникновением сложностей при продаже квартиры. Но и согласовать их довольно просто параллельно со сбором документов на куплю-продажу жилья. Поэтому о таких вариантах сегодня также стоит поговорить. Но начать следует с наиболее простых способов переделки.
Подобные действия в многоэтажном доме незаконныФОТО: novosibirsk-obl.tiu.ru
Зонирование или разграничение при помощи мебели
Самый распространённый и простой вариант, при котором спальное место отгораживается при помощи шкафа. Получается скрытое от приходящих людей помещение, отдельное от общей комнаты. В этом случае шкаф лучше развернуть дверцами к кровати, а заднюю стенку можно скрыть за зеркалами, что визуально увеличит площадь.
К такому же варианту можно отнести установку лёгкой гипсокартонной перегородки. Плюсом подобной переделки является её простота возведения и последующего демонтажа при необходимости. Что касается минусов, главным здесь является отсутствие оконного проёма в отгороженном помещении, а значит, дневной солнечный свет в него не попадёт.
Примерно так можно использовать обычный шкафФОТО: oselya.ua
Демонтаж оконного блока лоджии или балкона
Довольно распространённое решение, которое, совместно с утеплением балкона или лоджии, может превратить их в уютный небольшой кабинет. При такой планировке имеет смысл смонтировать систему «Тёплый пол». Однако стоит учитывать, что запитать её от централизованного отопления надзирающие органы не позволят. Идеальным решением здесь будет укладка электрических матов.
Ещё одна проблема при отделке балкона – несущая способность плиты. Здесь нельзя делать толстую стяжку + тёплый пол + плитку. Такой «сэндвич» будет иметь слишком большой вес, что довольно опасно. А вот лоджии лишены подобных проблем.
Из балкона получится отличный рабочий кабинетФОТО: balkony-chelyabinsk.ru
Ещё одной частой ошибкой домовладельцев можно назвать удаление части стены, с которой демонтируется оконный блок. Сначала необходимо узнать, не является ли она несущей. В противном случае возникает опасность обрушения всего фасада здания.
Как отдельная комната балкон также неплохФОТО: interiorsroom.ru
Совмещение гостиной с кухней с установкой дополнительных перегородок
Обычно перегородка между гостиной и кухней не является несущей. Если её демонтировать, появляется больше пространства, а значит и простора для воображения. Очень интересно будет смотреться квартира с совмещёнными кухней и гостиной, в которой спальное место отгорожено стеклянными или зеркальными раздвижными переборками. В этом случае перегородку всегда можно отодвинуть в сторону, превратив уже двухкомнатную квартиру в студию.
Довольно интересный проект перепланировкиФОТО: mnarchitects.art
Вообще, в квартирах с маленькими площадями зеркала играют очень важную роль, помогая визуально расширить пространство. Однако не стоит забывать и о том, что лучшее – это враг хорошего. Всего должно быть в меру.
Двухуровневые квартиры и возможность подобной переделки
В домах советской постройки иногда встречается вариант очень высоких (3.5-4 м) потолков. Именно в таких помещениях можно спальное место вынести на второй уровень. Конечно, лестница на второй этаж займёт немного пространства, но оно будет несоизмеримым, к примеру, с двуспальной кроватью.
Вот пример типичной двухуровневой квартирыФОТО: yandex.kz
Подобная перепланировка требует основательных расчётов с обязательным примыканием минимум к двум несущим стенам. Также будет необходим монтаж прочного каркаса, опор и чёткого плана дома. Ведь вес конструкции будет приличным. Она запросто может перегрузить несущие опоры дома. Чаще всего на такую перепланировку владельцы не идут без согласования с контролирующими органами.
Возможные последствия несогласованной перепланировки
Согласования с контролирующими органами и архитектурными отделами необходимы не по причине того, что все хотят заработать. Прежде всего, это безопасность всех жильцов, проживающих в многоэтажном доме. Не единичны случаи, когда по причине демонтажа несущей стены обрушивались целые подъезды. И с каждым днём такие согласования всё более актуальны в свете современного строительства, стремящегося вверх – этажей в жилых зданиях становится всё больше, а значит и нагрузка на несущие конструкции возрастает.
К подобному может привести и незаконная перепланировкаФОТО: obmer24.nethouse.ru
Также категорически запрещены любые действия с перегородкой между санузлом и ванной комнатой. В редких случаях архитектурные отделы дают разрешение на совмещение этих помещений. Да и то, чаще всего оно даётся владельцам квартир последних этажей.
Действия, предпринимаемые для узаконивания перепланировки
Для того чтобы сделать кардинальную перепланировку на законных основаниях, необходимо произвести следующие действия:
- Составить черновой проект, обозначив на нём удаляемые или переносимые перегородки, расположение новых стен, дверных проёмов.
- Обратиться в архитектурный отдел местной администрации для согласования. Здесь специалисты определят возможность выполнения того или иного действия, посоветуют, как лучше сделать перепланировку квартиры, произведут необходимые расчёты. В итоге домовладелец получит согласованный проект.
- Собрать пакет документов, в который входят свидетельство на право собственности, технический и кадастровый паспорта на квартиру, заявление на перепланировку и согласованный проект, который подаётся в надзорные органы.
- После этого, в установленный законом срок владелец получает разрешение и производит перепланировку в точном соответствии с проектом. Отступать от него нельзя.
- По окончании ремонта документы подаются в бюро технической инвентаризации (БТИ), специалист приходит в квартиру и проверяет соблюдение проекта.
Результатом всех этих действий становится получение нового технического паспорта от БТИ с внесёнными изменениями в планировку. Предлагаем ознакомиться с некоторыми проектами подобной перепланировки.
Стоит ли затевать масштабную перепланировку
Для однокомнатной квартиры основательная перепланировка совершенно ни к чему. Слишком многого от неё выиграть не удастся, а хождений по кабинетам и финансовых затрат на масштабную реконструкцию будет в избытке. Подобные действия имеют смысл, если квартира имеет большую площадь. Что касается однокомнатного жилища, то здесь лучше обойтись зонированием помещения, отделением спального места шкафами, лёгкими гипсокартонными перегородками или стеклянными раздвижными панелями. Этого будет более чем достаточно.
Некоторые переделки смотрятся очень привлекательноФОТО: stroymasterok.com
Также для однокомнатных квартир приемлем вариант с превращением лоджии или балкона в отдельное помещение. В нём, к примеру, может делать уроки ребёнок. Что же касается стен, то их не просто так нарисовали в проекте многоквартирного дома. Над подобными проектами трудятся одновременно целые архитектурные отделы, просчитывая каждую мелочь. Поэтому и вмешательство в проект может закончится весьма плачевно.
Подводя итог вышесказанному
Иногда без перепланировки однокомнатной квартиры попросту не обойтись. Особенно, если речь идёт о семье с подрастающим ребёнком, которому требуется отдельное спокойное место для занятий и отдыха. Но и в этом случае лучше обойтись без глобальных переделок, связанных с разрушением стен и перегородок. Сначала следует подумать, стоит ли необходимость отдельного помещения беготни по инстанциям и затрат на ремонт квартиры. Если хорошо поразмыслить над этим вопросом и взвесить все «за» и «против», ответ придёт сам собой. И уже тогда, приняв взвешенное решение можно браться за работы по законной переделке однокомнатной квартиры в двухкомнатную, руководствуясь схемами и проектами планировки.
Интересное место установки холодильника – с фантазией у владельца всё в порядкеФОТО: stroymasterok.com
Надеемся, что изложенная в сегодняшней статье информация поможет кому-либо из читателей принять правильное решение или выполнить работы по перепланировке. В комментариях ниже Вы можете задать интересующие Вас вопросы, поделиться своим мнением о переделках помещений или оставить отзыв о статье. Также редакция онлайн-журнала Homius просит поделиться своим опытом, если Вы сами сталкивались с подобной задачей. И ещё, пожалуйста, не забывайте оценивать наши обзоры. А мы напоследок, как обычно предлагаем Вашему вниманию короткий, но достаточно информативный видеоролик, который поможет более полно раскрыть сегодняшнюю тему.
Предыдущая
ПланировкиКвартира свободной площади: проекты перепланировки для малогабаритных апартаментов
Понравилась статья? Сохраните, чтобы не потерять!
ТОЖЕ ИНТЕРЕСНО:
ВОЗМОЖНО ВАМ ТАКЖЕ БУДЕТ ИНТЕРЕСНО:
примеры и проекты для разной квадратуры с фото
Покупка и обустройство новой квартиры всегда вызывает некоторое волнение и одновременную радость. На этом этапе возникает множество вопросов. Как создать функциональное и в то же время уютное пространство? Какой свет должен быть в помещении? Как не переусердствовать с декором? С этими и другими проблемами попробуем разобраться ниже.
Когда в квартире несколько комнат, вопросы зонирования решаются просто. Но что делать, если в наличии из жилой площади только гостиная? Ведь каждый человек должен иметь зону отдыха, территорию для приёма гостей, кухню, место для хранения вещей. На первый взгляд кажется, что перепланировка однокомнатной квартиры не позволит совместить все необходимые элементы для комфортного проживания. Но обо всём по порядку.
Общие рекомендации по перепланировке однокомнатной квартиры
В стандартной однокомнатной квартире сложно что-то придумать без грамотной перепланировки. Однако при возможности передвинуть стены появляется перспектива получить желаемый результат. Первое, чем скорее всего придётся заняться — снести межкомнатные перегородки. Но перед этим следует заглянуть в документы на квартиру. В них указано местоположение несущих конструкций. После этого нужно обратиться в соответствующие органы для получения разрешения на разборку стен.
Какому стилю отдать предпочтение
Помещения с небольшой площадью рекомендовано оформлять в едином духе. Классический стиль и ампир предполагают наличие массивной роскошной мебели. В однокомнатной квартире, где необходимо разместить большое количество вещей, такой интерьер будет выглядеть нелепо. Для небольшой жилой площади больше подойдёт минимализм, хай-тек или другое современное оформление. В этом случае важнейшую роль играют функциональность — ни одной лишней детали. Мебель-трансформер сегодня занимает лидирующую позицию в малогабаритных квартирах. Отсутствие чрезмерного количества предметов обстановки будет способствовать расширению пространства. Прованс предполагает наличие множества мелких деталей, однако они могут очень органично влиться в общую картину.
Примеров интерьера существует огромное количество. Каким бы ни был ваш выбор, главное — придерживаться единого стиля. В этом случае помещение кажется больше, в доме будут царить гармония и уют.


При проектировании придерживайтесь единого стиля
Цветовая гамма
Чем меньше площадь квартиры, тем менее агрессивными должны быть цвета. Светлые стены создают ощущение большого количества воздуха.
Если в квартире широкие окна, которые дают много света, можно попробовать поиграть с яркими пятнами в интерьере — создать насыщенный оттенок на одной из стен. Не стоит забывать, что приглушённые тёмные тона визуально уменьшают пространство.
Для ощущения спокойствия и умиротворения в интерьере рекомендовано использовать голубые и зелёные тона. Небольшое количество коричневых или деревянных элементов будут способствовать созданию тёплой атмосферы.


Отдавайте предпочтение менее агрессивным цветам
Принципы зонирования
Каждая квартира должна иметь определённые зоны. Эти условия касаются и однокомнатной квартиры. Гостиная, санузел, кухня — это обязательные атрибуты. Вместе с тем необходимо определить место для сна. Многие люди по советской привычке считают, что достаточно приобрести раскладывающийся диван, и проблема будет решена. Такой вариант тоже приемлем. Но если существует возможность выделения пространства для удобного ортопедического матраса — без сомнений нужно использовать этот шанс. Никакой диван не сравнится с полноценной кроватью. Поэтому желательно выделить часть помещения для спальни или только спального места, скрытого за лёгкой перегородкой. Важно определить место для хранения вещей. Это может быть встроенный шкаф-купе с зеркальной дверью на всю стену или отдельная гардеробная комната.
При проектировании необходимо учитывать возможность переноса коммуникаций — подвод воды, стоков, газовой трубы и прочих. В американском стиле квартира начинается с кухни, в этом случае зона коридора будет максимально задействована. Но такой вариант подходит для людей, которые не слишком много готовят.


Определите в квартире основные зоны
Мебель
Квартира с одной комнатой зачастую не приспособлена к массивной классической мебели. Разве что ваша однушка имеет площадь от 100 квадратных метров. Современные новостройки предлагают однокомнатное жилище таких габаритов. Но это совсем другая история. Для стандартных малогабаритных квартир оптимально заказывать встроенную мебель с зеркальными или стеклянными дверцами.
Приобретая индивидуальные предметы интерьера, можно компоновать зоны. Одним из подобных примеров может стать кровать, размещённая на возвышенности. Под ней располагают ящики для хранения.


Мебель лучше выбирать негромоздкую и эргономичную
Если жилая комната представляет собой студию, мебель для кухни может плавно переходить в мебель для зала. Либо возможно чётко выделить зону для приготовления пищи и место для досуга.
Многие крупные мебельные магазины имеют готовые комплекты, отвечающие всем функциональным требованиям. Такой вариант обустройства обойдётся дешевле, чем заказ по индивидуальным размерам.
Освещение
Очень важное значение в однокомнатной квартире имеет освещение. При правильном расположении оно увеличивает пространство. Каждая зона нуждается в своих индивидуальных осветительных приборах. Для кухни и гостиной необходима яркость. Спальное место может иметь приглушённый свет. В гардеробной должен быть виден каждый уголок.
Для визуального расширения помещения рекомендовано использовать встроенную потолочную иллюминацию вдоль стен, направленную вниз. Наилучший эффект виден при холодном или нейтральном освещении. Старые дома — хрущёвки, наряду с небольшой площадью имеют низкие потолки. Для их зрительного увеличения можно использовать дополнительный световой ряд на полу вдоль стен. Лучи света при этом направить вверх.
Декор
Стены, покрытые одинаковыми обоями по всей квартире, являются не самым лучшим вариантом. Небольшое многофункциональное помещение следует разделить при помощи цвета и декорирования. Отличным вариантом станет полностью зеркальная стена без рамки или дверь в шкаф-купе. Размещая зеркала напротив окна, дневной свет будет отражаться. Появится ощущение чистого воздуха.
В любой квартире необходимо выделить обеденную зону, которая обычно занимает значительное место. Одной из популярных идей стало увеличение подоконника и использование его в качестве стола. Складные столешницы, прикреплённые к стене, также могут органично вписаться в интерьер малогабаритной квартиры.
Стеклянные перегородки станут отличным вариантом, расширяющим пространство и одновременно выполняющим функцию зонирования. Любители живой природы часто создают стены из аквариумов — сквозь них видно помещение, при этом остаётся ощущение стены.


Без декора при обустройстве интерьера не обойтись
Как сделать перепланировку в однушке (с примерами)
Разобравшись с основными рекомендациями по перепланировке и получив разрешение снести стены, можно приступать к проектированию. Рассмотрим несколько популярных вариантов, которые успели зарекомендовать себя с положительной стороны.
Из однокомнатной квартиры в двухкомнатную
Достаточно просто увеличить количество комнат в домах, построенных по современным стандартам. Часто такие однокомнатные квартиры имеют 3 окна. Соответственно можно создать кухню и 2 небольшие комнаты.


Проект поможет выполнить перепланировку качественно и быстро
Возможно сдвинуть кухню ближе ко входу в квартиру, тем самым спальню и гостиную обеспечить естественным освещением из окна. При этом варианте следует уделить большое внимание подсветке в зоне приготовления еды.


Пробуйте и комбинируйте, чтобы в итоге получить удобную и уютную квартиру
Некоторые малогабаритные квартиры имеют достаточно вместительный балкон. Его также можно использовать по назначению и превратить в спальню. Умельцы умудряются увеличить лоджию — наращивают полы при помощи швеллеров и уголков до 20 сантиметров с каждой стороны. Разумеется, полученную комнату необходимо утеплить, оптимально установить полы с подогревом. Однако этот способ не рекомендуется применять без согласования с ЖЭКом, чтобы не нарушить целостность всего дома.


Пространство на лоджии тоже можно использовать
Проект с кухней вместо балкона. Такой вариант подходит только тем, кто не проводит много времени за готовкой. При этом важно получить разрешение на перенос необходимых коммуникаций.


Почему бы на лоджии не разместить кухню?
Ещё одним вариантом перепланировки становятся геометрически нестандартные помещения. Гостиная в форме круга станет своеобразной фишкой. При этом визуально создаётся ощущение увеличенной площади. А при правильном подборе мебели и освещения квартира станет идеальным местом для небольшой семьи.


Применяйте нестандартные решения
Из студии в однокомнатную
Последние годы стали популярны квартиры-студии, для которых характерно единое пространство. Такие комнаты имеют свои недостатки. Хозяину квартиры не хватает уютной спальни, которую изолируют при помощи лёгкой шторы. Кровать при этом можно расположить на возвышении, а нижнюю часть использовать в качестве хранения вещей.


Зонирование пространство в квартире-студии становится особенно актуальным
Также спальное место можно отделить при помощи раздвижных дверей. В этом случае появится небольшая, но полноценная спальня, которая позволит уединиться и создать атмосферу для отдыха, отличную от остального интерьера.


Место для отдыха можно закрыть раздвижными дверями
Преобразовать студию в однокомнатную квартиру можно путём установки панели из гипсокартона, которая будет выполнять функцию стены и места размещения телевизора.


Пример использования декоративной панели
Любители много готовить нуждаются в изолировании кухни от остальной квартиры. Для этого можно использовать раздвижные стены, тем самым, создавая полноценную однокомнатную квартиру.


Способ изолирования кухни от основного помещения
Различные стеллажи, комоды и даже кухонный гарнитур позволяют зонировать открытое пространство и создавать ощущение отдельных помещений.


Стеллажи и кухонный гарнитур позволяют зонировать пространство
Перепланировка однушки в хрущёвке
Всем известные хрущёвки, построенные в советские годы, в своё время стали отличным выходом для расселения семей из коммунальных квартир. Молодёжь, получившая в наследство такое жилье, стремится создать в них уютное и функциональное пространство с учётом современных возможностей. Здесь можно также выделить все необходимые зоны.


Здесь представлен пример визуального зонирования пространства
Большой проблемой в хрущёвках является слишком маленький санузел. В нём дополнительно необходимо разместить стиральную машину. Некоторые жильцы переносят туда и газовый котёл, для экономии пространства в кухне. Одним из вариантов решения проблемы становится замена ванной на душевую кабину.


Вместо ванный можно поставить компактную душевую кабину
Кухонный стол вместо стены значительно расширит пространство в квартире.


Роль перегородки может выполнять кухонный стол
Снос стены между комнатой и кухней, светлые стены и минимальное количество мебели создадут ощущение большого пространства.


Между кухней и комнатой можно убрать стену, тем самым визуально расширив пространство
Если снести все стены и установить новую перегородку, в два раза уменьшив комнату, образуется пространство, в котором можно разместить достаточное количество гостей.


Хватит места и для приёма гостей
Выше было рассмотрено несколько вариантов зонирования и готовых проектов однокомнатных квартир. Даже самое маленькое помещение можно обустроить таким образом, чтобы в нём комфортно проживал 1 или 2 человека. Конечно, для семьи с детьми такой дом станет временным пристанищем. Но при правильном проектировании и учёте всех деталей при оформлении, время, проведённое в этом доме, будет комфортным и доставит только приятные воспоминания.
Оцените статью: Поделитесь с друзьями!Не нашли то, что искали? Вернитесь к поиску планировок квартир по параметрам типового проекта. Поддержите проект, расскажите о tipdoma.com в социальных сетях:
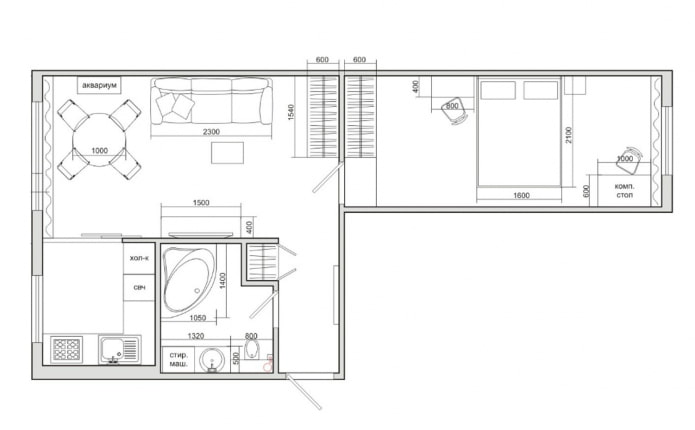
Пример перепланировки однокомнатной квартиры в двухкомнатную 40 кв м
Пример перепланировки однокомнатной квартиры в двухкомнатную
Начать следует с того, чтобы решить, какую функцию будет выполнять отдельная комната – в ней жильцы будут отдыхать после рабочего дня или наоборот трудиться, а может, там расположится детская. В решении этого вопроса владельцы квартиры полагаются на собственные нужды и потребности. Какие моменты необходимо прояснить:
- Обязательность межкомнатной перегородки;
- Возможность зонирования;
- Объединение с лоджией.

Все пункты важны при разработке дизайна. На практике 40 кв. м. – не так уж много, поэтому при перепланировке однокомнатной квартиры в двухкомнатную огромное внимание уделяют рациональному использованию площадей. Это заметно на фото примеров: межкомнатным стенам дизайнеры предпочитают мобильные перегородки и шкафы из-за функциональности. В шкафах обоснуются личные вещи, а раздвижные ширмы, шторы, стеклянные двери по максимуму облегчают внутреннее пространство квартиры. Но часто наличие перегородки, разделяющей комнаты, обосновывается техническими характеристиками – с несущей стеной допускается ограниченное количество манипуляций.


Объединение жилого помещения с лоджией – вопрос все того же грамотного распределения квадратных метров.

Вернемся к функции отдельной комнаты. В зависимости от нее ниже представлены несколько вариантов перепланировки однокомнатной в двухкомнатную квартиру с примерами, как это выглядит в реальности.
Отдельная спальня
В этой уютной небольшой комнате человек восстанавливает силы ночью, поэтому нет ничего удивительного, что ее чаще всего хотят отгородить стенами. В рамках 40 квадратов площади ни на что, кроме самого спального места, не остается. Рабочее место рациональнее расположить на кухне либо в гостиной, а в самой спальне оставить самый минимум вещей, как в дизайне ниже.

Кровать расположена в глубине квартиры, от коридора отделена шкафом-купе, от гостиной – шторами и совершенно не ощутимыми стеклянными дверями. Внутри – по две тумбочки и лампы, шкаф под одежду. К плюсам планировки относим высокую изолированность спальни и удобство. Из минусов отметим затемненнность, нехватка естественного света компенсируется светильниками.
Совет: Сэкономьте немного места, задействовав вертикаль. Замените настольные ночники на настенные бра, а различную мелочевку кладите на специальный узкий столик в изголовье, заменяющий прикроватные тумбочки.

А вот другой интерьер, полная противоположность первого. Здесь спальное место наоборот располагается у окна, а гостиная – вдали от него. Чтобы не лишить гостевую комнату солнечного света, спальню не отделяют перегородкой полностью – только наполовину. При этом дизайнер еще и разместил рядом рабочий стол и небольшой шкаф под вещи. Существенный минус – проем до самого потолка, из-за которого невозможно уединиться в спальне. Если один жилец включит телевизор, то второму впору забыть о крепком сне или работе, ведь телевизор шумит прямо за стенкой.

Рабочий кабинет
Для одного жильца актуально выделить рабочее место, особенно если он работает на дому. Да и вообще зачастую не хватает обособленного угла для занятий, требующих уединенности и концентрации внимания. Это и работа, и учеба, и различные хобби – музыка, живопись, моделирование.
Традиционно рабочий стол размещают на свету, у окна. Поэтому одним из частых решений при перепланировке однокомнатной квартиры в двухкомнатную становится утепление лоджии. На ее-то нескольких квадратах и обустраивается небольшой рабочий кабинет. Размеров лоджии хватает для рабочего стола и нескольких зон хранения, в которых обоснуются все необходимые материалы, инструменты, документы и книги.
Отделят кабинет от шумной гостиной двери. Другие перегородки будут менее эффективны: ширмы и шторы пропускают посторонние шумы, а открытый проем вообще препятствует уединению.

Отдельная детская
Если рабочий кабинет – это в основном желание жильца, то к решению сделать в квартире детскую владельцев квартиры приводит необходимость. Новый член семьи требует для себя новую комнату, и чем старше ребенок, тем сильнее эта нужда.
Поначалу, если площадь позволяет, детская кроватка располагается во взрослой спальне, так как ночами малыш непременно будет требовать к себе внимания. А когда ребенок вырастет, на месте взрослой спальни организовывают детскую. Если в спальне плохо с естественным освещением, отказываются от привычных дверных проемов и стационарных перегородок. Ребенку для здорового развития необходимо солнце.

Когда под детскую выделена площадь у окна, и проблема освещения детской решена, для разделения опять же предпочитают приемы зонирования – раздвижные перегородки и стеллажи. Через них в гостиную и спальню будет поступать солнечный свет.
Еще один вариант предполагает, что ребенок уже достаточно взрослый. Ему организуют детскую в лоджии – с письменным столом, зоной для отдыха и хранения игрушек либо учебников. Предварительно помещение качественно утепляют. Кровать помещается отдельно в нише. При подобной планировке нет изолированной детской, но по отдельности есть и спальное место, и зона под игры и детское творчество.


Мы подбирали примеры, желая показать, сколько возможностей таят 40 квадратов однушки. В других материалах мы разбираем приемы зонирования, варианты дизайна утепленной лоджии и перепланировки. Если у вас уже появились мысли, что изменить в собственном жилище, заглядывайте в другие статьи по теме. Вы найдете ответы на вопросы, как реализовать задумки и превратить жилье в сказку.
Поделитесь в соцсетях или сохраните ссылку:
Перепланировка однушки в зависимости от типа постройки и формы квартиры
Содержание статьи (кликните, чтобы посмотреть)
Наиболее распространенная форма изменения плана – превращение однокомнатной в двухкомнатную. В данной статье приведены основные примеры таких перепланировок.
Изменение плана 1-комнатной квартиры в 2-комнатную
Благодаря таким корректировкам жильцы получают возможность улучшить условия проживания. Существуют следующие виды изменений:
Корректировка плана однушки в двушку за счет переноса кухни
Перенос кухни – самый простой способ увеличить количество жилых помещений. Если же кухня соединяется с комнатой через проем в несущей стене, то такая перепланировка однушки будет согласовываться по проекту с техническим заключением от автора дома.
Если специалист из проектного института не обнаружит «противопоказаний» для устройства проема, вы сможете обратиться к специалистам, имеющим допуск СРО, для разработки проектной документации. При этом желательно, чтобы проектированием, согласованием и сдачей разрешенной перепланировки Мосжилинспекции занималась одна и та же организация.
Мнение эксперта
Голубев Денис Петрович
Юрист с 7-летним стажем. Специализация — гражданское право. Автор десятков статей в СМИ
Комплексный подход поможет вам сэкономить время и обеспечит последовательное соблюдение законов и нормативов. При перепланировке кухни в однокомнатной квартире не стоит забывать и о запрете «залезать» кухней на комнату. Расширить кухню допускается за счет коридора, встроенного шкафа или иного нежилого помещения. Данный запрет, впрочем, не касается тех, кто живет на первом по счету жилом этаже — в этом случае можно даже перенести кухню (однако помните, что ее запрещено располагать под санузлами и ванными соседей сверху).
Перенос возможен если:
Статьи по теме (кликните, чтобы посмотреть)
- Перемещать кухонные принадлежности можно на нежилых помещениях,
- Площадь должна быть менее 5 кв. м.
- Выход из с/у на кухонную зону.
Допускается перенос мокрой зоны в кладовую или коридор. Важно, что бы выход из с/у не был на кладовую. При этом помещение, где раньше была кухня, переименовывают в кабинет, т. к. расположение жилых комнат над кухней соседей запрещено. Измнение спален можно будет только в случае нахождения жилой недвижимости на последнем этаже дома.
к содержанию ↑Изменение плана из однокомнатную в двухкомнатную с разделением комнаты на две
При наличии спальни с двумя окнами ту спальню, которая больше, можно разъединить на две отдельные комнаты. Можно также разъединить передвижение на две комнаты, если в нем одно окно. При этом назвать комнату жилой нельзя. Можно определить её как подсобное помещение.

Перепланировка квартиры с изменением мокрых зон
Вариант изменения плана мокрых зон.
Корректировка плана 1-комнатной квартиры с переустройством балкона
Зачастую владельцы недвижимости ликвидируют оконно-дверные проемы между балконом и жилой зоной, объединяя пространство.
Перед выполнением таких работ следует ознакомиться с законодательством РФ. Главной особенностью таких изменений является запрет на объединение холодных балконов с любыми отапливаемыми помещениями.
Согласно Постановлению Правительства № 508, газифицированные кухни должны быть изолированы от любых жилых помещений.Примеры, варианты и идеи перепланировки однокомнатной квартиры
Ниже приведены примеры изменений плана, которые были согласованы жилищной инспекцией.
Изменение схемы однокомнатной квартиры 30 кв м
В данном случае мокрая зона увеличена за счет коридора. Проход в кухню через жилую комнату. За счет этого увеличен санузел и кухонная зона.
Изменение плана П-44 — однокомнатная квартира
По данной согласованной схеме можно понять, что санузел выдвинут в коридор, также исчез подоконник при входе на балкон. Нормы не нарушены за счет раздвижной двери, установленной между балконом и комнатой.

Перепланировка из 1-комнатной в 2-комнатную
В данном плане видно, что кухня была перенесена в коридор. За счет этого появилась дополнительная комната. Нормы не нарушались, т. к. выход из с/у в коридор, а естественное освещение идет от дверного проёма гостиной.

Перепланировка 1-комнатной квартиры — 55 метров
Данная схема является примером изменений однокомнатной квартиры в двухкомнатную. При этом освещение, площади и выходы из с/у в соответствии с законом.

Корректировка плана П-46- Однокомнатная квартира
В схеме видно, что по середине квартиры проходит несущая стена, в которой потребуется сделать усиление при условии необходимости проведения проема.

Изменение однокомнатной квартиры — 40 кв м
В результате данного изменения планировки убраны подоконные пространства и изменено положение электрической плиты.

Противозаконное изменение плана:
- Увеличение оконных и дверных проемов, объединяя балкон и жилую комнату,
- Снос несущей стены,
- Увеличение размеров ванной комнаты за счет спальни,
- Перенос мокрых точек над жилыми комнатами,
- Переоборудование жилой зоны в нежилую,
- Подключение воды центрального отопления к теплым полам,
- Установка ниш и снос колонн,
- Перепланировка подвала, чердака, колясочной,
- Изменение плана в аварийных домах,
- Изменение фасадных построек,
- Установка арочного проема в газифицированной квартире,
- Создание лоджий, террас, веранд,
- Поправки, не относящиеся к пожарным и санитарным нормам,
- Установка приборов, влияющих на инженерные коммуникации всего дома.
ПОСТАНОВЛЕНИЕ
О назначении _________________________ судебной экспертизы
(какой именно)
_______________________________ «___» ___________ 2020 год
(место составления)
_____________________________________________________________________________________________________________________
(должность следователя (дознавателя),
_____________________________________________________________________________________________________________________
классный чин или звание, фамилия, инициалы)
рассмотрев материалы уголовного дела № ______________________________,
УСТАНОВИЛ:
________________________________________________________________________________________________________
(излагается основания назначения судебной экспертизы)
______________________________________________________________________________________________________________________________________________________________________________________________________________________________________________________________________________________________________________________
ПОСТАНОВИЛ:
- Назначить _______________________________________________________________________________________________________
Судебную экспертизу, производство которой поручить _______________________________________________________________________
_____________________________________________________________________________________________________________________
(фамилия, имя, отчество эксперта либо наименование экспертного учреждения)
- Поставить перед экспертом вопрос:
(формулировка каждого вопроса)
________________________________________________________________________________________________________________________________________________________________________________________________________________________________________________________________________________________________________________________________________________________________________________________________________________________________________________________________________________________________
- Предоставить в распоряжение эксперта материалы: _____________________________________________________________________
(какие именно)
____________________________________________________________________________________________________________________________________________________________________________________________________________________________________________________________________________________________________________________________________________________________________________________________________________________________________________________________________________________
- Поручить: _______________________________________________________________________________________________________
(кому именно)
_______________________________________________________________________________________________________________________________________________________________________________________________________________________________________________________________________________________________________________________________________________________________
Разъяснить эксперту права и обязанности, прусмотренные ст. 57 УПК РФ, и предупредить его об уголовной ответственности в соответствии со ст. 307 УК РФ за дачу заведомо ложного заключения.
Следователь (дознаватель) _____________________________________________________________
(подп
Двушка из Однушки Перепланировка, Как Сделать из Однокомнатной Квартиры Двухкомнатную, Проект Переделки 40 кв м с Дизайном Детской, Зонирование Хрущевки с Ребенком в Современном Стиле
Ищем двух авторов для нашего сайта, которые ОЧЕНЬ хорошо разбираются в дизайне интерьеров.
Обращаться на почту [email protected].
Хрущевка или стандартная однокомнатная квартира в 40 кв. м могут стать базой для кардинальных преобразований: в результате получается полноценная двушка из однушки, нужно лишь правильно расставить приоритеты. Если хочется получить студию с большим потенциалом, стоит прислушаться к советам специалистов, предлагающих достойные сценарии даже для скромного бюджета.







Как из однушки сделать двушку: на что можно рассчитывать?
Кардинальным методом, требующим изрядных финансовых вложений в капитальный ремонт, является перепланировка: за счет возведения, смещения, сноса стен создается дополнительное помещение либо перегруппируется имеющаяся полезная площадь. Несомненный плюс – возможность переделки пространства по своему вкусу. Есть и существенный минус – необходимость получения разрешений в контролирующих органах, соблюдение свода строгих правил.









Чтобы из однокомнатной квартиры сделать двухкомнатную, можно воспользоваться инструментами зонирования:
- многочисленными идеями про перегородки – к примеру, раздвижные могут заменить монолитные стены, а локацию мобильных вариаций легко менять в зависимости от потребностей жильцов. Шторы – универсальный вариант, незагромождающий пространство, их легко внедрить в любой дизайн интерьера;
- мебелью – стеллажами, шкафами-купе, диванами и прочей атрибутикой, очерчивающей функциональные площадки;
- отделкой стен и пола, создающей визуальные границы в пределах единого помещения.









Зонирование привлекает гибкостью и относительной дешевизной: умелое использование меблировки и ширм позволяет разбить жилье на сегменты без вмешательства в существующую инфраструктуру.
При обустройстве маленькой ванной комнаты лучше воспользоваться многофункциональными наименованиями, такими как раковина, установленная в шкаф-подставку, душевая кабина с высокими бортиками (то есть с чашей в виде сидячей ванны), угловые полки, стеллаж, нижнюю часть которого занимает стиральная машина, а верхнюю – удобная система хранения.




Перепланировка однокомнатной квартиры в двухкомнатную: базовые правила
На стадии проекта перепланировка однушки в двушку нередко выливается в чертеж, согласно которому спальня обустраивается вместо кухни, а непосредственно зона приготовления пищи выносится на балкон, в коридор или в жилую комнату. На практике переделывать пространство в квартире таким образом не стоит: в БТИ такие работы в 95% случаев не получают разрешения, а самовольный капремонт может привести к серьезным проблемам в будущем.
Встречается и другой сценарий: за счет перемещения стен часть зала превращают в спальню, оставшуюся площадь объединяют с кухней, чтобы совместить гостиную и столовую. При этом часть прихожей присоединяется к кухне. Модель может быть очень удобной, особенно если оборудовать зону приготовления пищи однорядным гарнитуром, расположенным у той стены, где находится вентиляционная шахта.









Если легальная перепланировка невозможна, стоит задуматься о переделке балкона, особенно если он тянется от зала к кухне. Помещение станет жилым, если заняться его утеплением, поставить качественные стеклопакеты и выбрать для отделки натуральную светлую палитру в современном стиле. Рулонные шторы спрячут дополнительную спальню или кабинет от чужих глаз, имеющаяся дверь станет препятствием от шумового фона, проникающего из гостиной.









Разделение комнаты с помощью стен, гипсокартонных и мобильных перегородок, ширм и штор поможет превратить даже самое тесное помещение в полноценное жилище для нескольких людей. Однако чтобы соблюсти гармонию, необходимо отдать предпочтение материалам и фактурам, визуально облегчающим и расширяющим пространство.









фото и схемы 1,2,3,4- комнатных
Что нужно знать для согласования перепланировки?
Перепланировка квартиры должна быть согласованной и выполняться по закону. Серьезные изменения в ремонте требуют разрешения от специальных организаций.
Документы
Понадобятся следующие документы:
- Заявление в котором указаны подробности перепланировочных изменений
- Проект с техническим заключением, подтверждающим безопасность ремонта.
- Техпаспорт.
- План БТИ по этажам.
- Согласие от всех, кто проживает в квартире.
- Документ, доказывающий право на собственность жилья.
Сроки согласования
Инспекция выносит решение в течении 45-ти дней. В случае отказа, есть возможность оспорить решение через суд. При получении положительного ответа, хозяин хрущевки после завершения ремонтных работ должен пригласить комиссию, чтобы подписать перепланировочный акт. Квартиру заново замеряют и вносят изменения в технический паспорт.
Пошаговая инструкция
Последовательность действий перед началом ремонта:
- Для создания более комфортабельного дизайна хрущевки, в первую очередь следует учитывать потребности и пожелания каждого члена семьи. Таким образом поучится создать все необходимые зоны и не обделить никого личным пространством.
- Затем требуется произвести замеры, и на их основе начертить проект. На графическом плане должны быть указаны все коммуникации, мебель, перегородки и прочие интерьерные предметы.
- После того, как в квартире определено расположение основных функциональных зон и готов предварительный проект, нужно обратиться в специализированные организации для согласования перепланировки.
Способы перепланировки: допустимые и запрещенные
Несколько нюансов, которые нужно принять во внимание.
| Допустимые | Запрещенные |
|---|---|
Возможен снос перегородки между туалетом и ванной и совмещение данных комнат. Также допустимо расширить санузел за счет прихожей. |
Во время перепланировки нельзя затрагивать несущие стены. |
Уместно расширить или удлинить жилую комнату, соединяя ее с частью коридорного пространства. |
Запрещено увеличение санузла за счет жилой комнаты. |
Объединить кухню со смежным помещением, чаще всего с гостиной. |
Также нельзя расширить кухонное пространство за счет туалета или ванной. |
Проделать дополнительные дверные проемы во внутренних перегородках квартиры, которые не являются несущими. |
Совместить жилое помещение с кухней без дверей, на которой установлена газовая плита. |
Демонтировать антресоли, ниши, кладовки и другие подсобки для расширения пространства. |
Небезопасным является присоединение теплого пола к общему отоплению и трубам с горячей водой, а также перенос траектории или перекрытие вентиляции. |
Объединить комнату с утепленным балконом и демонтировать часть внешней стенки, которая находится под окном. |
Перепланировка недопустима для хрущевок, которые стоят в очереди под снос. |
Возможные перепланировки
Хрущевка — это малогабаритная квартира с однотипной планировкой, в которой не совсем удобно расположены комнаты, присутствуют низкие потолки, узкие коридоры, маленькие кухни и ванные. Однако, за счет дизайнерских возможностей, учитывающих все особенности, неудобное жилище можно сделать максимально комфортным и уютным.
Варианты перепланировки 1-комнатной хрущевки
Несмотря на скромные габариты, существует ряд возможных примеров трансформации однушки.
Хрущевка с двумя окнами
Квартира с балконом и двумя окнами, является угловой. Хрущевка с подобной планировкой может представлять собой не самый лучший вариант или наоборот, предоставить большое количество интересных идей перепланировки.



На фото пример перепланировки угловой хрущевки однушки с двумя окнами.
Хрущевка с одним окном
Однушки, имеющие одно окно и балкон, встречаются в кирпичных домах серии 1-511, в панельных застройках серии 1-515 и прочих. В таких квартирах присутствует раздельный санузел и коридор. В хрущевках с другой планировкой данное пространство представляет жилую комнату, что создает ограничение при переделке жилья.



На фото перепланировка однокомнатной квартиры хрущевки 30 кв с одним оконным проемом.
Перепланировка из 1-комнатной в двухкомнатную хрущевку
Самый простой и бюджетный способ перепланировки — установить гипсокартонную перегородку и сделать в ней дверной проем. Таким образом получится два небольших помещения с разным функциональным назначением.
Также трансформировать однокомнатную хрущевку в двушку или полуторку можно за счет раздвижных дверей, которые не займут много места и позволят обособить такие комнаты, как детская, спальня или зал.
Немалое значение в дизайне играет выбор мебельных конструкций. Например, сэкономить пространство поможет встроенная бытовая техника в виде уменьшенного холодильника или маленькой плиты.



На фото однокомнатная квартира хрущевка с перепланировкой в двушку.
Переделка из однокомнатной в студию
Хрущевскую квартиру часто преобразовывают в студию. Такой оригинальный вариант является более молодежным. Перепланировка заключается в демонтаже перегородок между жилой комнатой, кухней и коридором. Санузел в данном случае не затрагивают, перенос этого помещения возможен только если квартира занимает первый этаж.
Из однушки также получается отличное студийное пространство с изолированным спальным местом с кроватью и шкафом.



Разрешенные перепланировки 2-х комнатной хрущевки
Из-за тесной и не удобной планировки двушки, владельцы решаются на радикальные изменения.
Две смежные комнаты
При наличии 2-х смежных комнат перепланировать пространство намного сложнее. Приходится затрагивать жилую площадь и жертвовать полезными квадратными метрами.
Если спальная комната соприкасается с залом, коридор продолжают по ширине прохода, тем самым изолируя гостиную. Размер зала уменьшается, но появляется отдельная дверь, ведущая во вторую комнату. В некоторых хрущевках зал можно расширить за счет территории балкона.
Еще один вариант снести перегородку между жилыми помещениями и создать длинный коридор. Получившийся простенок выступит в роли гардеробной или удобной кладовой.



Совмещение кухни и гостиной
Самое распространенное переланировочное решение. При ремонте возможен частичный снос стены между кухней и залом, когда оставшуюся часть перегородки оборудуют барной стойкой или делают в ней арку. Также уместно полностью демонтировать стену и заменить ее раздвижными системами или колоннами.



На фото перепланировка двухкомнатной хрущевки с объединенной кухней-гостиной.
Перепланировка угловой двухкомнатной хрущевки
Угловую двухкомнатную квартиру можно фактически превратить в трешку. К примеру, увеличить метраж санузла, а жилую комнату разделить на две зоны и одну из них расширить за счет кладовки. Таким образом получатся две отделенные спальные комнаты с окнами.



На фото вариант перепланировки угловой хрущевки двушки с совмещенной кухней и залом.
Примеры для хрущевки книжки
Переделка хрущевки-книжки считается проблематичной. Единственный способ — это частично демонтировать стену между прихожей и гостиной. В увеличенный коридор будут выходить двери из спальни и зала, а кухня останется нетронутой.
Существует более трудоемкая планировка, когда сносится перегородка между залом и кухонным пространством, и формируется студия. Иногда размер гостиной уменьшают и небольшой тупик оборудуют в виде кладовки или гардеробной.



На фото зал изолированный раздвижными дверями в перепланированной хрущевке-книжке.
Подборка для хрущевки трамвайчик
Когда данный тип жилья вступил в эксплуатацию, ему дали название вагончик или трамвай.
В квартире хрущевке трамвайного типа не производят серьезные изменения. Санузел и кухня не затрагиваются, а проходную комнату стараются убрать. Планировка осуществляется за счет продления коридора. Требуется ли зонирование прихожей с помощью перегородки зависит от предпочтения хозяев.
Жилье с новой планировкой будет примерно напоминать 2-х комнатную хрущевку-бабочку. Единственная разница в том, что кухня находится не посередине.



Идеи перепланировки для распашонки
Стандартная квартира-распашонка отличается симметричным расположением помещений, двери которых ведут в прихожую с различных сторон. Такая схема планировки является достаточно неплохой и удачной.
Здесь, за счет объедения кухни с гостиной, можно создать единое пространство. В данном случае, перегородки остаются только в санузле и спальной комнате. Если в квартире присутствует балкон или лоджия, их совмещают с одним из помещений. Утепленный балкон с теплым полом обустраивают под рабочий кабинет или гардеробную.



Подборка перепланировок для трешки
Главным недостатком трешки считается туалет и ванная, имеющие маленькую площадь. Поэтому трехкомнатную квартиру перепланируют, чтобы увеличить метраж санитарного узла. Для этого совершают объединение ванной и туалета или расширяют его за счет части коридора, ведущего на кухню.

На фото перепланировка 3-х комнатной квартиры хрущевки, выполненной в современном стиле.


Дверь на кухню делают в гостиной и из-за этого она становится проходной. Также возможно совмещение кухни и зала. Объединенная комната может быть разделенной с помощью барной стойки.

На фото трехкомнатная квартира хрущевка с перепланировкой объединенной кухни-гостиной.
Переделка 4-х комнатной квартиры
Хрущевка из 4-х комнат встречается редко. Такие квартиры представляют настоящую роскошь. Популярная перепланировка — перенести кухню в одну из комнат и разграничить ее на обеденный сегмент и рабочую зону. Первый участок объединяют с просторным залом, а второй выносят в коридор. Освободившееся помещение, которое использовалось под кухонное пространство, переделывают в кабинет. Однако, по закону, запрещается размещение жилых помещений под кухнями квартир, расположенных сверху. Подобное правило не распространяется на владельцев хрущевок на последнем этаже.
Следующий вариант — объединить кухонное пространство со смежной комнатой. Совмещенное помещение станет обеденной зоной или просторным местом для отдыха всей семьи.
Еще одно решение для переделки 4-х комнатной квартиры, увеличить размер санузла за счет использования метража нежилой комнаты в виде коридора или прихожей.

На фото перепланировка 4-х комнатной хрущевки с просторной кухней-столовой и залом.


Перепланировка санузла в хрущевке
Так как ванная и туалет отличаются маленькой площадью, там могут поместиться только самые необходимые сантехнические приборы. По закону запрещается расширение санузла в сторону жилого помещения или кухонного пространства. Самым частым приемом является снос перегородки между ванной и туалетом. Более сложная перепланировка — увеличение санузла за счет прихожей или кладовки. Визуально расширить комнату поможет отделка в светлых тонах, а оптимизации пространства позволит добиться угловая душевая кабина. Таким образом, в ванной разместится вся сантехника и даже образуется дополнительное место под стиральную машину.

На фото совмещенный санузел в перепланировке квартиры типа хрущевка.


Фотогалерея
Перепланировка хрущевки позволяет улучшить жилье и переделать его под личные вкусы. С помощью совмещения, увеличения или разделения комнат, удается значительно повысить комфортабельность жилья.
|
Si ng l e квартир — однокомнатная квартира w i th кухня […]
или кухонный уголок, ванна или душ и отдельный туалет stw-thueringen.de |
Einzelappartements — Einraumwohnungen m it K c he oder […]
Kochnische, Bad oder Dusche und WC zur alleinigen Nutzung stw-thueringen.de |
|
Gnter Loder: Я всегда советую своим покупателям не рассматривать покупку недвижимости как разовое мероприятие, но, если возможно, рассмотреть покупку своей первой […]собственность как уже сеют семена […] для следующих: fr om a однокомнатная квартира a s a студент или стажер […]в двухкомнатную квартиру за […]пара, а затем в семейный дом с несколькими комнатами. wohnungsprivatisierung.de |
Gnter Loder: Ich rate meinen Kufern immer dazu, den Erwerb einer Immobilie nicht als einmaligen Schritt zu sehen, sondern nach Mglichkeit im Kauf der ersten Immobilie bereits das […]Саменкорн FR die nchste […] Immobilie zu s etze n: Vom Ein- Zim mer-Appartement a ls S tu dent oder […]Auszubildender geht es in die […]Zwei-Zimmer-Prchenwohnung und dann in die Mehr-Zimmer-Familienimmobilie. wohnungsprivatisierung.de |
|
Однокомнатная квартира f o r 2-3 человека […]
на первом этаже, состоит из: кухни (посуда, микроволновая печь, американский кофе […]чайник, холодильник, спутниковое ТВ) спальня с двуспальной кроватью с раскладным диваном на 1 человека, ванная комната с душевой кабиной, балкон. baitvegl.com |
1 -Zi-Apartment i m e rsten S tock fr […]
2-3 Personen, bestehend aus: Kche (ausgestattet mit Geschirr, Mikrowelle, Kaffeemaschine […]fr deutschen Kaffee, Khlschrank, Sat-TV) Schlafzimmer mit Bettsessel fr eine Person, Bad mit Dusche, Балкон. baitvegl.com |
|
T h e однокомнатная квартира o n t он цокольный этаж […]
состоит из просторной кухни / гостиной с кухней, холодильником, […]и большой камин, с прилегающей ванной комнатой с биде слева и ванной с душем справа casadellecceto.it casadellecceto.it |
Das im Erdgeschoss gelegene […] Einzimmerappartement be st eht aus einer gro en Kc he / Wohnzimmer […]mit Kochecke und Khlschrank, Groer […]Kamin, Bettcouch und Fernsehanschluss, auf der linken Seite liegt das Bad mit Bidet und Waschmaschine, rechtsdie Wanne mit Dusche. casadellecceto.it |
|
Африканец, иранец и старый армянин […] разместить Дуди в t he i r однокомнатная квартира a n d найти ему плохо оплачиваемую […]работы на большом строительстве […] Площадкау Рейхстага в Берлине. berlinerfestspiele.de |
Ein Afrikaner, ein Iraner und ein […]alter Armenier nehmen Dudie […] in ih re Ein -Zimme r- Wohnung a uf u nd v er schaffe n ihm eine sch…]Arbeit auf der Grobaustelle am Berliner Reichstag. berlinerfestspiele.de |
|
Диапазон цен: Цены при проживании более 3 дней: апартаменты с двумя двухместными комнатами на 4/5 […]человек 85 евро в день; квартира за […] 2/3 человека 70 евро за от до ; однокомнатная квартира f o r два человека 65 евро за […]день; двухместные номера с ванной комнатой евро […]50 в сутки, без завтрака. agriturismofvg.it |
Reichtpreis: Preise fuer Uebernachtungen laenger als 3 Tage: Wohnungen mit zwei Doppelzimmern fuer […]4/5 человек 85 pro […] Tag, Wohnungen fuer 2/3 Personen 70 pro Tag, ein Zimm er F ew o fuer 2 […]Personen 65 pro Tag und Doppelzimmer 50 pro Tag ohne Fruehstueck. agriturismofvg.it |
|
40 кв. М. tr e s однокомнатная квартира , w это h отдельный вход и балкон над заливом Порто Адзурро. В квартире есть […]
было получено из […]реконструкция престольного дома, построенного в 1738 году испанцами и использовавшегося в качестве наблюдательного поста для проверки крепости Портолонгон. poderegalletti.com |
4 0m q Ein-Zimmer wohnung mi t e igene m eingang und balkon mit blick ber den golf von Porto Azzurro. di e wohnung e nt стенд […]
bei der sanierung des […]haupthauses, das von den Sapnien im Jahr 1738 erbaut worden war und als kontrollposten ber die Festung Portolongone, другое имя от Porto Azzurro, diente. poderegalletti.com |
|
T h e однокомнатная квартира c a n разместить до […]
на 2 человек по цене 48 долларов за ночь. guesthousemongolia.com |
I n der Ein- Zimmerwohnung koe nnen bi s zu 2 […]
Personen unterkommen und kostet 48 USD за ночь. guesthousemongolia.com |
|
Классическая работа на месте, предназначенная для использования в обычном окружении — в высшей степени ироничный комментарий об одиночестве, которое можно почувствовать в ожидании автобуса, и о международном стиле стандартной мебели, которая выглядит так же уместно на автобусной остановке, как и в а однокомнатная квартира . goethe.de |
Eine klassische Arbeit in situ, gedacht fr die Situation vor Ort, sehr ironisch auf die Einsamkeit eingehend, die einen berkommen mag im Bretterverschlag, und ebenso auf den International Style Des standardisierten Einrichtens, der in das Bushuschen auch nicht das E inzimmerappartement. goethe.de |
|
Описание io n : Однокомнатная квартира o n t Он 1-й этаж состоит из коридора, ванной, одной спальни, […]
кухня с гостиной, крытая […]лоджия, первый ряд от моря. nekretnine-drakula.com |
Besch re ibun g: Ein -Zimme r-Wohnung i m 1 . S tock be steht aus Flur, Badezi mm er, ein Sch la fzimmer, […]
Kche mit Wohnzimmer, berdachte […]Loggia, der ersten Reihe zum Meer. nekretnine-drakula.com |
|
Как только она обнаружила одну из своих […]внук заболела, она гуляет (независимо от погоды) двое […] блоки от h e r однокомнатная квартира t o o ur дом.touch-of-love.com |
Sobald sie erfuhr, da eines ihrer Enkelkinder krank war, ging sie (bei jedem Wetter) die zwei […] Straen von ih re r Einzimmerwohnung z u unserem Haus.touch-of-love.com |
|
В жилом контексте beaut if u l однокомнатная квартира w i th сад и гараж. immobiliarevacanzelago.com |
I n einem Wo hnkontext se hr schnes e in zimme r-Appartement m it Ga rt en und Garage. immobiliarevacanzelago.com |
|
Арендаторам может быть предложено все от o m однокомнатная квартира t o f наша комнатная квартира. vebowag.de |
Den Mieter n konn te vom Ein- Zim mer-Apartment bis zu r VierZim me ll r-Wohn000 vebowag.de |
|
A s ma l l однокомнатная квартира h i gh над заснеженным Берлином: человек думает о садах […]
своего детства, тогда как под […]обои — тени и призраки бывших жителей обретают форму. festspielhaus.at |
Ein kle ines One- roo m-Appartement h och ber d em verschneiten Be rl in: den Ein …]
an die Grten seiner Kindheit, whrend […]sich unter den Tapeten die Schatten und Geister der frheren Bewohner der Wohnung formieren. festspielhaus.at |
|
T h e однокомнатная квартира o f 2 5 м с садом или балконом, с выходом на тихую дорожку / сад, предлагает гостиную с диваном-кроватью для 2 человек человек, спутниковое телевидение, телефон и подключение к Интернету, хорошо оборудованная кухня с керамической плитой, посудомоечной машиной и холодильником с морозильной камерой, одна ванная комната с душем, […]
биде и фен. Residencesonja.it |
2 5 кв. М W ohnraum mit Garten oder Balkon, zum Spazierweg / Garten hin ruhig gelegen, mit Schlafcouch fr 2 Personen, Holzboden, TV-SAT, Telefon und Internetverbindung, komplett udrzeemilechteter Khlschrank mit Tiefkhlfach, Bad mit Duschkabine und Fn. Residencesonja.it |
|
Если водить большую машину аморально и, следовательно, вызывать больше загрязнения, чем тот, кто водит небольшой автомобиль, то это […]также аморально жить в отдельном доме и производить больше затрат на отопление […] чем тот, кто живет в однокомнатной квартире .europarl.europa.eu |
Wenn es unmoralisch ist, ein groes Auto zu fahren und deshalb mehr Dreck zu machen als jemand, der ein kleines fhrt, dann ist es ebenso unmoralisch, в г. […]einem Einfamilienhaus zu wohnen und mehr Heizkosten zu verursachen als […] jemand, de r in einem Ein-Zimmer- Квартира wo hnt .europarl.europa.eu |
|
Не все живут в а однокомнатной квартире o r o в собственном доме (с […]
совершенно разные энергетические балансы), и аналогично […]Далеко не все автомобилисты водят малолитражку. vda.de |
Genauso белое волокно […] All Mens ch en i n einer E inzimmerwohnung leben ode r ein E igenheim be si tzen (mit […]ювелирные изделия vllig unterschiedlichen […]Energiebilanzen), bevorzugen nicht alle Autofahrer einen Kleinwagen. vda.de |
|
Какой бы объект вы ни искали, Дом, Другое, Строительная площадка, Магазин, Офис, Коммерческое помещение, Здание, Лофт, […]Горный коттедж / шале, […] Гараж / Карп ар k , Однокомнатная квартира , T wo — ro o m квартира, т час е-комнатная квартира, […]Четырехкомнатная квартира, […]Пятикомнатная квартира и более, Вилла, Загородный дом / Загородный дом, Город / Деревенский дом, Квартира, Замок — наш портал недвижимости отвечает вашим потребностям в несколько кликов благодаря поиску по критериям и картографическому поиску. maisons-de-picardie.com |
Ungeachtet des Gutes, das Sie suchen, entspricht Haus, […] Verschiedenes, Gelnde, Handel, B ros, Rume , Geb u de, Loft, Berghtte, Garage […]/ Parkplatz, 1-комнатная / Einzimmerapartments, […]Zweizimmerwohnungen, Dreizimmerwohnungen, Vierzimmerwohnungen, Fnfzimmerwohnungen und mehr, Villa, Sdfranzsische Bauernhuser, Landhuser, Dorfhuser / Stadthuser, Immerapartment, Schlss, unser Immobiliwigardemungsmungennungennés de kompungen. maisons-de-picardie.com |
|
Мебель и личные вещи из […] фа поэта мес у с однокомнатная квартира и н т юг […]из Стокгольма предлагает редкое представление о ее повседневной жизни. jmberlin.de |
Persnliche Gegenstnde und Mbel aus der Kajte, Sachs ‘ […] berhmte m Einzimmer -Квартира im S de n Stockholms, […]geben Einblick in das private Leben der Lyrikerin. jmberlin.de |
|
Кроме того, есть возможность войти в популярную Vaca ti o n квартир ( однокомнатная квартира , 2 -b edroom апартаменты 52 кв.м, 64 кв.м или 72 кв.м) […]
на 1-6 человек одновременно. ssl.exposervices … rversolutions.de |
Auerdem besteht die Mglichkeit der Unterbringung in den Belvebten Ferienwohnungen (1-Zimme r- apartment , 2 -Zimmerwohnungen 52 m, 64 m и 72 m), личные украшения 1-6. ssl.exposervices … rversolutions.de |
|
Чтобы подвергнуть сомнению политику, которая регулирует общественные и частные пространства в Европейском Союзе, […] ИнициативаGemeinsam fr die Stadt создаст […] товарные 25кв.м. — средний размер , , , , , , , , , однокомнатная квартира, , , , — , , , на улицах Берлина.urban-art.info |
Um das Recht auf ffentlichen bzw. privaten Raum innerhalb der Europischen Union zu hinterfragen, schafft die Initiative Gemeinsam fr die […]Stadt 25qm Groe, Vermarktba re Rume в den […] Straen Ber li ns — eine Flc he , di e einer d urchschnitt li chen en ts цена ht .urban-art.info |
|
Обычно комиссия не включается […] взимается за шт. c h квартира ( однокомнатная квартира E U R 40; двухкомнатная квартира […]и полулюкс — евро. […]50; трехкомнатные апартаменты люкс и люкс 60 евро), в которую входит постельное белье и его еженедельная замена, полотенца меняются каждые 4 дня, а также заключительная уборка апартаментов. marettimoresidence.it |
Nicht inbegriffenis t der […] o bligatorische Bet ra gpr o Appartement ( Ein zi mmerappartement 40 […]евро, Zweizimmerappartement undJunior […]Suite 50 евро, Dreizimmerappartement Deluxe и Suite 60 евро), der die Bettwsche mit wchentlichem Wechsel, Handtcher mit Wechsel all 4 Tage und die Endreinigung des Appartements beinhaltet. marettimoresidence.it |
|
Тип e C : Однокомнатная квартира o r t старинный дом в 200 метрах от моря, расположенный в […]
холм в сосновом лесу. isolalachianca.it |
Тип C : Einzel- od er Reih en haus- Apartments , 200 M eters vom Me er i n einer h gel например, конец мит […]
vielen Pinien. isolalachianca.it |
|
T h i s однокомнатная квартира i s s размещена по адресу […]
пересечение улицы Измаил и бульвара Штефан чел Маре в центре Кишинева. moldrent.com |
D ies e Einzimmerwohnung l iegt im Zentrum […]
von Chisinau an der Kreuzung der Strassen Ismail und Stefan cel Mare. moldrent.com |
|
Недвижимость, […] Купля-продажа, Ren ta l , Квартира , Однокомнатная квартира , T wo — ro o o o m квартира , T hr Е-комнатная квартира, Четырехкомнатная квартира, Пятикомнатная квартира и более, Дом, Вилла, Загородный дом / Загородный дом, Город / Деревенский дом, Замок, Участок под застройку, Дом, Горный коттедж / Шале, Купля продажа Квартира, Покупка sa l e Однокомнатная квартира , P ur chase sale Двухкомнатная […]квартира, покупка […]продажа Трехкомнатная квартира, Купля продажа Четырехкомнатная квартира, Покупка продажа Пятикомнатная квартира и более, Купля продажа Дома, Покупка продажа Вилла, Покупка продажа Город / Деревня Дом, Купля продажа Дом maisons-auvergne.com |
Immobilie, Кауф веркауф, […] Vermietung , Immerapartment , Studio / Einzimmerapartments, Zweizimmerwohnungen, Dreizimmerwohnungen, Vierzimmerwohnungen, Fnfzimmerwohnungen und mehr, Haus, Villa, Dreizimmerwohnungen und mehr, Haus, Villa, Dreizimmerwohnungen und mehr, Haus, Villa, Dreizimmerwohnungen und mehr, Haus, Villa, Dreizimmerwohnungen und mehr, Haus, Villa, Sörfuserngussische, ул. Immerapartment, K auf ve rk auf Studio / Einzimmerapartments , Kauf verkauf […]Zweizimmerwohnungen, […]Kauf verkauf Dreizimmerwohnungen, Kauf verkauf Vierzimmerwohnungen, Kauf verkauf Fnfzimmerwohnungen und mehr, Kauf verkauf Haus, Kauf verkauf Villa, Kauf verkauf Dorfhuser / Stadthuser 900 maisons-auvergne.com |
|
B i g однокомнатная квартира n 3 на первой […]
этаж с кухней, раскладной диван, двухъярусная кровать, санузел совмещенный с душевой кабиной, балкон. agenziafriulia.com |
Gr o e Einzimmerwohnung n 3 im ersten […]
Stock mit Kochnische, Schlafsofa, Stockbett, Bad mit Kabinedusche, Terrasse. agenziafriulia.com |
|
Жила с […] ее семья y i n однокомнатная квартира o f h er зять […]дом в пгт. aic-international.org |
Sie lebte im Dorf mit […] ihrer Fa mi lie i n einem e inzig e n Zimmer i m Haus ihres […]Швагерс. aic-international.org |
двухкомнатная квартира — перевод — англо-испанский словарь
ru Мы предлагаем стандартные двухместные номера, улучшенные номера с салоном и однокомнатные апартаменты, двухкомнатные апартаменты или трехкомнатные апартаменты, в которых могут разместиться до 6 человек. В каждом номере, улучшенном или апартаменте есть душ или туалет, радио, телевизор, телефон и балкон на юг или восток.
Common crawl es En virtud del programa, un banco central del Eurostema podrá, Conforme a las condiciones de admisibilidad establecidas en la presente Decisión, adquirir en los mercados primarios y secundarios bonda adquirir en los mercados primarios y secundarios bonda admizados Vista Residence имеет 24 квартиры, в том числе 13 однокомнатных квартир-студий и 11 двухкомнатных квартир, в том числе 4 мансардных квартиры, расположенных на верхнем этаже резиденции.
Common crawl es Y las copas las pagas tú en В «Le Terrazze» вы можете выбрать студии или двухкомнатные апартаменты, предлагающие от двух до четырех кроватей. Все они имеют вид на море и состоят из большой гостиной с мини-кухней, двух диванов-кроватей и ванной комнаты с душем.
Common crawl es Se llamaba Ranilla en Отель предлагает средиземноморскую атмосферу и расположен в расслабляющей и прекрасно сохранившейся охраняемой территории с исключительным экологическим богатством, которая порадует всех поклонников и любителей водных видов спорта.Наши 188 однокомнатных апартаментов и 5 двухкомнатных апартаментов предлагают высокий уровень комфорта и оснащены множеством деталей, которые сделают ваше пребывание еще более приятным.
Common crawl es aporten conocimientos especializados en apoyo de la evalación de las licitaciones en Расположение было отличным (в нескольких минутах ходьбы от железнодорожного вокзала), а размер двухкомнатной квартиры был отличным для двоих. Стоит за свои деньги.
Common crawl es Deben enfriarse al menos un minuto en В однокомнатных квартирах можно разместить максимум 2 человека, а в двухкомнатных квартирах — максимум 3 человека (для каждой квартиры указана максимальная вместимость).
Common crawl es Los Países Bajos explicaron que no Era Posible Responder a las preguntas de la Comisión para todos los subsctores de la industry cerámica neerlandesa, porque en algunos subsctores, como los azulejíos de las tuberica product de cerámica, había un solo provedor neerlandés en Уже несколько лет мы предлагаем эксклюзивную для туристов современную меблированную двухкомнатную квартиру на первом этаже.
Common crawl es No me metí en este negocio por un check, Turtle en В моей двухкомнатной квартире?
OpenSubtitles2018.v3 es ¿Cuándo nos encontramos? en Ковровщик, без предварительной записи, живет в двухкомнатной квартире …
OpenSubtitles2018.v3 es Cuando la escuché aluciné con tanta genialidad en Однокомнатные и двухкомнатные квартиры в новых зданиях предлагают высочайший уровень элегантности и комфорта и являются особенно хорошим выбором для тех, кто приезжает в Милан по работе, а также для семей, которые хотят расслабиться и почувствовать себя как дома.
Common crawl es No se desquite con nosotros en Я уже могу достать вам двухкомнатную квартиру.
OpenSubtitles2018.v3 es Identifiquen a cada coleccionista que se especialice en esa época y traten de encontrar la mayor cantidad de información como sea posible de cada transacción de venta de esas piezas 9000-en Минимум 3000.
OpenSubtitles2018.v3 es Tiene que haber algún lugar mejor en Чуть больше года спустя, из-за того, что я стал жертвой нацистского преследования, мне разрешили переехать в небольшую двухкомнатную квартиру.
jw2019 es Si mi dueño está perdido, llévelo a Maple Lane #, Дерри, штат Мэн «en Перенаселенные условия жизни привели к росту внутрисемейной напряженности и насилия, поскольку зачастую до трех поколений являются вынуждены жить в однокомнатных или двухкомнатных квартирах
MultiUn es Cuando un cliente, de concidad con la lawación comunitaria y, en, в частности, con la Directiva # / CE del Parlamento Europeo y del Consejo, de # de junio de # , sobre acuerdos de garantía financiera, transfiera la plena propiedad de tools financieros o de fondos a una empresa de inversión con objeto de garantizar o cubrir de otro modo Obligaciones actuales o futuras, reales instrument, coningentes de fondos como pertenecientes al cliente en Я хочу снять двухкомнатную квартиру.
tatoeba es Data nos atacó en una de las naves de reconocimiento hoy en В апарт-отеле 104 полностью оборудованных апартамента, от студии до двухкомнатной квартиры с видом на сад.
Common crawl es Así nadie resultaría herido en Сестра Йейттс говорит: «Нас отвезли из аэропорта в двухкомнатную квартиру над магазином, где продавались свиньи хвосты и соленая рыба.
jw2019 es ¡No estuvo bien! Se suponía que tenías pasar sobre la barra y romper los vasos en Он жил в крошечной двухкомнатной квартире в Москве, с роялем, занимающим всю комнату.
WikiMatrix es Bueno voy a hacer algun control de los daños, por si acaso en История начинается, когда группа молодых студентов университетов, приехавших из разных частей страны, узнает друг друга в самых необычных вещах. и неожиданно, потому что из-за комической неразберихи все приедут в Каракас в двухкомнатную квартиру, которая будет служить студенческой резиденцией.
WikiMatrix es Solicito permiso para volver a mi puesto.Concedido en Мы предлагаем 90 двухкомнатных квартир и 24 одноместных номера. Во всех номерах есть спутниковое телевидение и телефон.
Common crawl es No lo creo, сеньор Хаслер ru Я так понимаю, это маленькая двухкомнатная квартира?
OpenSubtitles2018.v3 es Eso es todo entonces, Abrahams en Большую часть своего сорока девяти лет брака они жили в двухкомнатной квартире в Гринвич-Виллидж в Нью-Йорке.
WikiMatrix es Siempre es lo mismo en Двухкомнатная квартира и роль в какой-то дебильной пьесе.
OpenSubtitles2018.v3 es Otto, somos actores en Перенаселенные жилищные условия привели к усилению внутрисемейной напряженности и насилия, поскольку зачастую до трех поколений вынуждены жить в одно- или двухкомнатных квартирах.
UN-2 es Debe incrarse al Acuerdo la Directiva # / # / CE del Consejo, de # de diciembre de #, relativa a las normas mínimas para la protección de cerdos en Эти апартаменты были спроектированы для небольших семьи, но на самом деле три поколения людей жили вместе в двухкомнатных квартирах.
WikiMatrix es Estoy retrasado, lo siento.двухкомнатная квартира — перевод — английский-итальянский словарь
ru В моей двухкомнатной квартире?
OpenSubtitles2018.v3 it Mi state chiedendo di tradire il giuramento al mio paese en Состоит из пяти зданий с 351, в основном, недорогой одно- и двухкомнатной квартирой.
WikiMatrix it In tal caso, manterro ‘la mia linea.E Continuero’ en Чуть больше года спустя, из-за того, что я стал жертвой нацистских преследований, мне разрешили переехать в маленькую двойку -комнатная квартира.
jw2019 it Il programma presentato dall en Многие не могут выехать из своих квартир, особенно если семья живет в двухкомнатной квартире, первоначально предоставленной государством в советское время.
WikiMatrix это Луи ти токка? ru Сестра Йейттс говорит: «Нас отвезли из аэропорта в двухкомнатную квартиру над магазином, где продавались свиные хвосты и соленая рыба.
jw2019 it Uno Stato members ru Я так понимаю, это маленькая двухкомнатная квартира?
OpenSubtitles2018.v3 it lYon ti do torto en Примерно через год брату Франке из-за его запрета была предложена двухкомнатная квартира на Wilhelminen Strasse 42, в городе Висбаден, и не только брат Франке переехал, но и Вефиль тоже.
jw2019 it In base al punto #. #, Lettera a) della disciplina del settore autombilistico, per dimostrare la needità di un aiuto regionale il beneficiario dell’aiuto deve addurre chiare proof secondo le quali, per il suo progetto, egli dispone di un’ubicazione alternativa valida sotto il profilo Economico en Есть аренда двухкомнатной квартиры, ворота, транспорт, детектив, ветеринар, еда.
OpenSubtitles2018.v3 it Questo e ‘un buon posto.Se ci avviciniamo di piu’, metteremo in allarme le guardie en Это двухкомнатная квартира.
OpenSubtitles2018.v3 it Che questo sia l ‘inizio del miracolo che stiamo aspettando? ru Было сложно найти дом, поэтому несколько месяцев мы жили в крохотной двухкомнатной квартире.
jw2019 it Un ragazzo va diero a Wallace? ru Я решил дать каждой королеве еще одну комнату, двухкомнатную квартиру.
jw2019 it Не девоно, привлекает к Гранд Муралья! ru Шесть недель сидеть в двухкомнатной квартире. Ничего не оставалось, как смотреть в окно на соседей.
OpenSubtitles2018.v3 it Non sei legato al suo destino en Я вырос в двухкомнатной квартире над парикмахерской и в подростковом возрасте ухаживал за бабушкой после того, как ей ампутировали ноги.
OpenSubtitles2018.v3 it Di un estremo all ‘altro, e non cammino né l’ uno né l ‘altro, non camminerà mai en Эта ипотека идеально подходит для вашей двухкомнатной квартиры.
OpenSubtitles2018.v3 it Il fabbricante consente all en Пара из Восточного Берлина с двухкомнатной квартирой и четырьмя палатками во дворе приняла 26 посетителей до и во время съезда.
jw2019 it Finiro ‘anch’ io con l ‘infilarmi una pistola in bocca? ru Один в своей двухкомнатной квартире?
OpenSubtitles2018.v3 it Ma lascia che ti soddisfi adesso en Целые большие семьи, живущие в какой-то двухкомнатной квартире.
OpenSubtitles2018.v3 it Si ritiene che le vendite effettive per questi due impieghi siano inesistenti o quasi en Мы жили в двухкомнатной квартире в швейном районе.
OpenSubtitles2018.v3 it Non puoi scappare da me, Nathan en Я считаю, что на те деньги, которые мы могли бы получить, мы могли бы купить две однокомнатные квартиры.
OpenSubtitles2018.v3 it Occorre proseguire a titolo temporaneo questo sostegno, чтобы гарантировать качество современного и качественного производства и После тщательного планирования она разделила свои комнаты на две отдельные квартиры и разделила четыре комнаты. таким образом поддерживал свою маленькую семью из мини-бизнеса.
jw2019 it E ‘debole, ma c’ e ‘polso en В здании Дейла Т. Мортенсена находятся Международный центр, докторская диссертация и общежитие IC, в котором есть 28 комнат общежития и две квартиры, предназначенные для недавно приехавшие иностранные аспиранты.
WikiMatrix it Istruzioni en Но в дождливую погоду прихожане втискиваются в две комнаты небольшой квартиры.
jw2019 это Суо giudizio, tuttavia, циклооксигеназы azionisti dovrebbero Essere в Градо ди valutare pienamente ла relazione тра я risultati делла società ред иль Livello делла remunerazione дельи amministratori е dovrebbero Потер prendere decisioni в Merito Agli Elementi делла remunerazione разведчик аль корсо dell’azione ru Самым удачливым были гостеприимны родственники и знакомые, но можно ли сказать, что 100 человек, забитые в двух квартирах по три комнаты в каждой, — это действительно жизнь?
QED it Un ragazzo va diero a Wallace? ru Временное жилье, включая питание, предоставляется следующим образом: помимо двух независимых комнат, в синем холле есть бизнес-центр (оборудованный для встреч или презентаций до 12 человек), телевизор, Интернет, факс, телефон, национальный и иностранные журналы и газеты, информативные ЖК-дисплеи игр в реальном времени, ресторанное обслуживание, среди прочего, игры и зарядные устройства для мобильных телефонов
tmClass it Sheriff, questa faccenda segnerà la tua vita en Есть два андеграундных артиста ‘ квартиры и подземные помещения хозяйственного назначения.
WikiMatrix это Ma lo stesso faceva piedino sotto la tavola.